Tamka, 4 pokoje, blisko metra i Wisły
Warszawa / Śródmieście Pokaż na mapie ›
Odświeżone: Sobota, 22 Listopad, 2025 14:24
1 069 000 zł
19089 zł/m2
Szczegóły ogłoszenia
- Kategoria: Mieszkania / Sprzedaż
- Powierzchnia:56 m2
- Liczba pokoi:4 pokoje
- Zabudowa:Blok
- Tech. budowy:Inne
- Piętro :2 piętro
- Liczba pięter:Wieżowiec
- Rynek:Wtórny
- Rok budowy:1967
- Sprzedaż:Pośrednik
- Inf. dodatkowe:Balkon
- Cena: 1 069 000 zł / 19089 zł/m2
Opis oferty
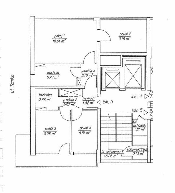
W ofercie mieszkanie o pow. 56,3 m2 położone na ii piętrze naTamce. Budynek wniesiony pod koniec lat 60-tych. Na piętrze
mieszczą się po 3 mieszkania oraz dwie windy.
Lokal jest odświeżony, w stanie do remontu. Jego powierzchnię
stanowią:
- 4 pokoje w tym jeden z wyjściem na balkon (16 m2, 9 m2, 9 m2, 6,51
m2)
- oddzielna i widna kuchnia
- łazienka
- korytarz
Mieszkanie jest przytulne i dobrze doświetlone. Okna wychodzą na 3
strony - południową, wschodnią i zachodnią. Na podłodze zachowana
jest oryginalna drewniana klepka.
W otoczeniu znajdują się podstawowe usługi - sklep spożywczy,
apteka, kawiarnie i restauracje.
Metro - 350 m
Przystanek autobusowy - 300 m
Ogród Saski - 1,4 km
Wisła - 750 m
Zakup tylko za gotówkę
Zapraszam do oglądania
Szanowni Państwo,
Treść niniejszego ogłoszenia ma charakter jedynie informacyjny i
nie stanowi oferty w rozumieniu art. 66 i nast. ustawy Kodeks Cywilny.
Zawarte w ogłoszeniu informacje pochodzą od właściciela
nieruchomości i mogą one wymagać weryfikacji. Prawa do elementów
ogłoszenia przysługują ELANDOM Nieruchomości S.C. (lub podmiotów
współpracujących). Kopiowanie i rozpowszechnianie ogłoszenia lub
jego elementów, bez zgody ELANDOM Nieruchomości S.C. jest
zabronione.
Oferta wysłana z programu dla biur nieruchomości ASARI CRM
(asaricrm.com)
Sprawdź zainteresowanie tym ogłoszeniem
Wyświetlenia
Data dodania
Ostatnio widziany
Obserwujących
Wysłane zapytania
Odsłony telefonu
Powiadom o podobnych ogłoszeniach
Lokalizacja: Warszawa
Kategoria: Nieruchomości » Mieszkania » Sprzedaż
Cena: od 908500 zł do 1229500 zł Powierzchnia : od 48 m2 do 64 m2
Chcę otrzymywać powiadomienia o nowych ofertach
Joanna Gruba
Konto firmowe
Na Lento.pl od 08 sty 2019
Odpowiada szybko
Strona użytkownika
- Wypromuj ogłoszenie
- Zgłoś naruszenie
- Drukuj ulotkę
- Edytuj/usuń ogłoszenie
- Udostępnij ogłoszenie
- Dodaj na Facebook

















