Śródmieście, blisko pkp Powiśle, 3 pokoje
Warszawa / Śródmieście Pokaż na mapie ›
Odświeżone: Poniedziałek, 23 Luty, 2026 17:48
1 195 000 zł
16149 zł/m2
Szczegóły ogłoszenia
- Kategoria: Mieszkania / Sprzedaż
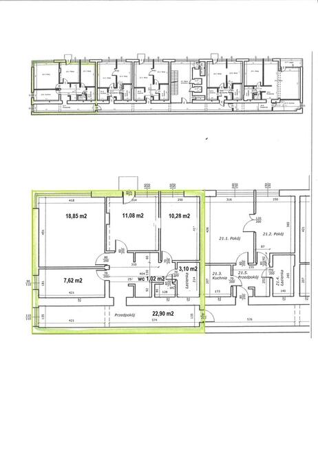
- Powierzchnia:74 m2
- Liczba pokoi:3 pokoje
- Zabudowa:Blok
- Tech. budowy:Inne
- Piętro :5 piętro
- Liczba pięter:Wieżowiec
- Rynek:Wtórny
- Rok budowy:1971
- Sprzedaż:Pośrednik
- Inf. dodatkowe:Balkon
- Cena: 1 195 000 zł / 16149 zł/m2
Opis oferty
Do sprzedania jednopoziomowe mieszkanie położone na 5 piętrzębloku z windą.
Blok wybudowany w latach 70-tych przy ul. Smolnej (Śródmieście)
przy PKP Powiśle.
Mieszkanie zajmuje powierzchnię 74,85 m2 + piwnica 1,48 m2. Do
dyspozycji, w ramach najmu jest komórka lokatorka na tym samym
piętrzę.
- kuchnia 7,62 m2
- salon 18,85 m2
- sypialnia 11,08 m2 z wyjściem na balkon
- sypialnia 10,28 m2
- łazienka 3,10 m2
- przedpokój + korytarz 22,90
Mieszkanie, dzięki licznym przeszkleniom, głównie w części
dziennej jest bardzo jasne i przytulne. Z okien rozpościera się
panorama Warszawy w kierunku mostu Poniatowskiego.
Na podłogach zachowana jest oryginalna dębowa klepka. Wnętrze
wymaga remontu i aranżacji według własnych potrzeb.
Oferta dedykowana zarówno rodzinom jak i dla inwestorów. Oddzielne
pokoje, obszerny korytarz oraz doskonała komunikacja spełnią
oczekiwania poszukujących.
W spacerowej odległości są przystanki tramwajowe, autobusowe oraz
kolei podmiejskiej. W ciągu 3 minut pieszo można spacerować po
parku lub Nowym Świecie, wybrać się do muzeum, a dalej skierowaś
swoje kroki na Stare Miasto. W odległości 1 km przebiega
malowniczy brzeg Wisły. A dla fanów aktywności, tuż przy bloku
znajduje się fitness!
Mieszkanie spółdzielcze bez księgi wieczystej, bez przeciwwskazań
do jej założenia.
Zapraszam do oglądania
Świadectwo charakterystyki energetycznej - zapotrzebowanie na
energię:
EU - użytkową (kWh/m2*rok): 58.70; EK - końcową (kWh/m2*rok):
101.93; EP - nieodnawialną energię pierwotną (kWh/m2*rok): 86.74;
EC02 - Wielkość emisji CO2 (t C02/m2*rok): 0.03; UOZE - Udział
odnawialnych źródeł energii w zapotrzebowaniu na energię końcową
[%]: 0.00;
Szanowni Państwo,
Treść niniejszego ogłoszenia ma charakter jedynie informacyjny i
nie stanowi oferty w rozumieniu art. 66 i nast. ustawy Kodeks Cywilny.
Zawarte w ogłoszeniu informacje pochodzą od właściciela
nieruchomości i mogą one wymagać weryfikacji. Prawa do elementów
ogłoszenia przysługują ELANDOM Nieruchomości S.C. (lub podmiotów
współpracujących). Kopiowanie i rozpowszechnianie ogłoszenia lub
jego elementów, bez zgody ELANDOM Nieruchomości S.C. jest
zabronione.
Oferta wysłana z programu dla biur nieruchomości ASARI CRM
(asaricrm.com)
Sprawdź zainteresowanie tym ogłoszeniem
Wyświetlenia
Data dodania
Ostatnio widziany
Obserwujących
Wysłane zapytania
Odsłony telefonu
Zapotrzebowanie energetyczne:
- Roczne zapotrzebowanie na energię (EP): 0.87
Zapotrzebowanie na nieodnawialną energię pierwotną określa efektywność całkowitą budynku. Uwzględnia ona obok energii
końcowej, dodatkowe nakłady nieodnawialnej energii pierwotnej na dostarczenie do granicy budynku każdego wykorzystanego
nośnika energii (np. oleju opałowego, gazu, energii elektrycznej, energii odnawialnych itp.). Uzyskane małe wartości wskazują
na nieznaczne zapotrzebowanie i tym samym wysoką efektywność i użytkowanie energii chroniące zasoby i środowisko.
Jednocześnie ze zużyciem energii można podawać odpowiadającą emisję CO2 budynku.
Powiadom o podobnych ogłoszeniach
Lokalizacja: Warszawa
Kategoria: Nieruchomości » Mieszkania » Sprzedaż
Cena: od 1016000 zł do 1374500 zł Powierzchnia : od 63 m2 do 85 m2
Chcę otrzymywać powiadomienia o nowych ofertach
Joanna Gruba
Konto firmowe
Na Lento.pl od 08 sty 2019
Odpowiada szybko
Strona użytkownika
- Wypromuj ogłoszenie
- Zgłoś naruszenie
- Drukuj ulotkę
- Edytuj/usuń ogłoszenie
- Udostępnij ogłoszenie
- Dodaj na Facebook





















