Sprzedaż od właściciela
Warszawa Pokaż na mapie ›
Ogłoszenie archiwalne Wygasło: Niedziela, 22 Czerwiec, 2025 18:10
560 000 zł
16413 zł/m2
Szczegóły ogłoszenia
- Kategoria: Mieszkania / Sprzedaż
- Powierzchnia:34,12 m2
- Liczba pokoi:2 pokoje
- Zabudowa:Kamienica
- Tech. budowy:Cegła
- Piętro :1 piętro
- Liczba pięter:6 pięter
- Rynek:Wtórny
- Rok budowy:1961
- Forma kuchni:Oddzielna
- Sprzedaż:Bez pośredników
- Inf. dodatkowe:Loggia, Winda, Piwnica
- Cena: 560 000 zł / 16413 zł/m2
- Ulica: Al. Waszyngtona
Opis oferty
Sprzedaż od właścicielaPrzedstawiam jasne, 2-pokojowe mieszkanie o powierzchni 34,12m², usytuowane na 1 piętrze
(winda) 6-piętrowego budynku z 1961 roku, przy ul. Waszyngtona na Pradze Południe, do
zamieszkania od marca. Oferta zarówno dla singla, małej rodziny, jak tez mieszkanie na wynajem
- dzięki świetnej lokalizacji. Możliwość parkowania na dojazdowych uliczkach obok budynku.
MIESZKANIE
Mieszkanie składa się z salonu, osobnej kuchni , sypialni/pracowni oraz łazienki. Do mieszkania przynależy
piwnica o powierzchni 1,5 m².
LOKALIZACJA Warszawa | Praga Południe | ul. Waszyngtona
Doskonała lokalizacja z łatwym dostępem do komunikacji miejskiej – w pobliżu znajdują się
przystanki autobusowe i tramwajowe, dotarcie do centrum miasta zajmuje 10 minut.
W najbliższej okolicy znajdują się liczne sklepy, lokale usługowe, szkoły, przedszkola, apteki,
a także tereny zielone – Park Skaryszewski oraz ogródki działkowe.
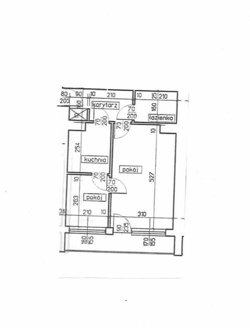
ROZKŁAD POMIESZCZEŃ
Salon - 16,33m2 Sypialnia – 5,52m2 Kuchnia – 5,08m2 Łazienka – 3,36 m2 Przedpokój – 3,83m2
Razem - 34,12m2
+ Loggia - 8,0m2 + Piwnica 1,5m2
WYPOSAŻENIE
Salon z wyjściem na loggię. Sypialnia z szafą. Kuchnia, zabudowana szafkami. lodówka,
kuchenka gazowa. Łazienka w jasnych kolorach, z wanną i pralką. Przedpokój z szafą.
Forma własności: Własność
Czynsz administracyjny: ok. 800,00 PLN,
Możliwość zakupu z kredytem
Nie jestem zainteresowana współpracą z Agencjami i pośrednikami
Zachęcam do kontaktu.
Prezentacja mieszkania po uprzednim kontakcie przez portal.
Powyższe ogłoszenie ma charakter informacyjny i nie stanowi oferty w rozumieniu art. 66 § 1 Kodeksu Cywilnego
Sprawdź zainteresowanie tym ogłoszeniem
Wyświetlenia
Data dodania
Ostatnio widziany
Obserwujących
Wysłane zapytania
Powiadom o podobnych ogłoszeniach
Lokalizacja: Warszawa
Kategoria: Nieruchomości » Mieszkania » Sprzedaż
Cena: od 476000 zł do 644000 zł Powierzchnia : od 29 m2 do 39 m2
Chcę otrzymywać powiadomienia o nowych ofertach
To ogłoszenie jest archiwalne i może być nieaktualne.
Danuta
Konto prywatne
Na Lento.pl od 10 lut 2025
Odpowiada szybko
Strona użytkownika
- Wypromuj ogłoszenie
- Zgłoś naruszenie
- Edytuj/usuń ogłoszenie
- Udostępnij ogłoszenie
- Dodaj na Facebook















