Powierzchnia biurowa Warszawa Śródmieście
Warszawa / Śródmieście Pokaż na mapie ›
Dodane: Piątek, 06 Marzec, 2026 15:51
10 650 zł
Szczegóły ogłoszenia
- Kategoria: Biura i lokale / Do wynajęcia
- Powierzchnia:150 m2
- Sprzedaż:Pośrednik
- Cena: 10 650 zł
Opis oferty
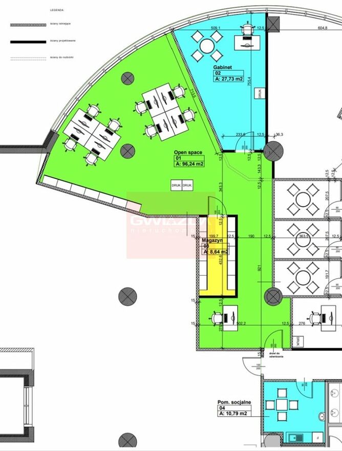
Warszawa, Śródmieście, rejon Dworca Centralnego.Do wynajęcia powierzchnia biurowa 150 mkw., z ładnym widokiem na Warszawę.
Biuro znajduje się na dwudziestym piętrze.
Aktualny układ biura, jak na załączonym planie. Łazienki w części wspólnej.
Do dyspozycji najemcy: klimatyzacja, okablowanie, podnoszona podłoga, podwieszane sufity, BMS, kontrola dostępu, światłowód, tryskacze.
Koszt najmu wywoławczo 16,50 Euro/mkw. plus koszty eksploatacji 30 zł/mkw. zaliczkowo plus powierzchnia wspólna ok. 6-10 % (współczynnik zależny od wielkości wynajętej powierzchni.)
Koszt miejsca parkingowego podziemnego: 150 euro/m-c, miejsce naziemne: 90 euro/m-c.
Warunki najmu do negocjacji.
Oferta wysłana z systemu Galactica Virgo
Numer oferty: BW-14573
Sprawdź zainteresowanie tym ogłoszeniem
Wyświetlenia
Data dodania
Ostatnio widziany
Obserwujących
Wysłane zapytania
Odsłony telefonu
Powiadom o podobnych ogłoszeniach
Lokalizacja: Warszawa
Kategoria: Nieruchomości » Biura i lokale » Do wynajęcia
Cena: od 9000 zł do 12000 zł Powierzchnia : od 128 m2 do 173 m2
Chcę otrzymywać powiadomienia o nowych ofertach
Marek Gwiazda
Konto firmowe
Na Lento.pl od 26 wrz 2022
Strona użytkownika
- Wypromuj ogłoszenie
- Zgłoś naruszenie
- Drukuj ulotkę
- Edytuj/usuń ogłoszenie
- Udostępnij ogłoszenie
- Dodaj na Facebook





