Oferta specjalna - ostatnie mieszkania
Warszawa / Mokotów Pokaż na mapie ›
Dodane: Piątek, 23 Styczeń, 2026 17:18
751 000 zł
25897 zł/m2
Szczegóły ogłoszenia
- Kategoria: Mieszkania / Sprzedaż
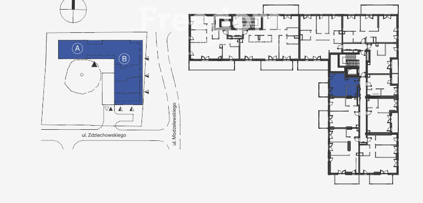
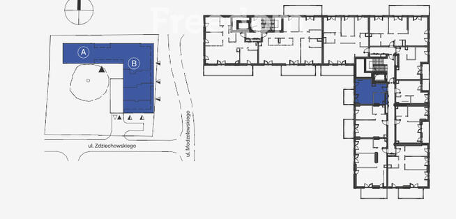
- Powierzchnia:29 m2
- Liczba pokoi:1 pokój
- Zabudowa:Inne
- Tech. budowy:Inne
- Piętro :1 piętro
- Liczba pięter:Wieżowiec
- Rynek:Pierwotny
- Rok budowy:2025
- Sprzedaż:Pośrednik
- Inf. dodatkowe:Balkon
- Cena: 751 000 zł / 25897 zł/m2
Opis oferty
Holm House V – opis inwestycjiOgólne informacje:
Nowoczesna, przykuwająca uwagę architektura z charakterystycznym
elementami jak obicia balkonów w kolorze miedziBudynek powstaje w
wyjątkowym otoczeniu ok 150-letniego dębuLiczne rozwiązanie z
troską o środowisko naturalne takich jak: zbiornik na wodę
deszczową czy innowacyjny system odzysku wody szarejWysoka jakość
wykonania i użytych materiałów w tym drewniana stolarka okienna
Lokalizacja:
Inwestycja powstaje na warszawskim Mokotowie między ulicami
Domaniewską a Mariana ZdziechowskiegoDoskonały dostęp do dwóch
stacji metra: Wierzbno i WilanowskaBliskość biznesowego zagłębia
WarszawyNieopodal (odległość 15-minutowego spaceru) znajduje się
Galeria Mokotów
Udogodnienia:
System odzysku wody szarej (odzyskiwanie wody użytkowej na potrzeby
wykorzystania jako wody do spłuczek w toaletach) przekładający się
na realne oszczędności w zużyciu wodywysokość 2,75 m (piętra od
1 do 8) i wysokość około 3,60 m na parterze
Mieszkanie składa się z:
HOL - 4,91 m2ŁAZIENKA - 5,10 m2POKÓJ DZIENNY Z ANEKSEM KUCHENNYM -
19,14 m2BALKON - 6,33 m2
Jeśli przed zakupem musisz sprzedać swoje obecne mieszkanie lub
skorzystać z kredytu — nie martw się, pomogę Ci przejść przez
cały proces spokojnie i bez stresu.
Nasi doradcy finansowi pomogą w przygotowaniu wszystkich niezbędnych
dokumentów i zaproponują ofertę kredytu na korzystnych warunkach,
dopasowanych do Twoich potrzeb.
_____
Powyższa oferta ma charakter informacyjny i nie jest ofertą w
rozumieniu art. 66 par. 1 ustawy z dnia 23 kwietnia 1964 r. - Kodeks
Cywilny (Dz. U. z 2025 r. poz. 1071, ze zm.). Opis nieruchomości
został sporządzony na podstawie informacji uzyskanych od dewelopera
i może być aktualizowany. Skontaktuj się z nami w celu zapoznania
się ze szczegółami oferty.
Właścicielem ogłoszenia wraz z jego elementami jest Freedom
Nieruchomości Sp. z o.o. lub podmioty współpracujące. Wszelkie
prawa zastrzeżone. Kopiowanie, rozpowszechnianie oraz korzystanie z
niniejszych materiałów w jakikolwiek inny sposób wykraczający poza
dozwolony użytek określony przepisami ustawy z 4 lutego 1994 r. o
prawie autorskim i prawach pokrewnych (Dz. U. z 2025 r. poz. 24) bez
pisemnej zgody Freedom Nieruchomości Sp. z o.o. lub podmiotów
współpracujących jest zabronione i może stanowić podstawę
odpowiedzialności cywilnej oraz karnej. Ponadto niniejsze materiały
stanowią tajemnicę przedsiębiorstwa Freedom Nieruchomości Sp. z
o.o. lub podmiotów współpracujących w rozumieniu ustawy z dnia 16
kwietnia 1993 r. o zwalczaniu nieuczciwej konkurencji (Dz. U. z 2022
poz. 1233).
"Właścicielem ogłoszenia wraz z jego elementami jest Freedom
Nieruchomości Sp. z o.o. lub podmioty współpracujące. Wszelkie
prawa zastrzeżone. Kopiowanie, rozpowszechnianie oraz korzystanie z
niniejszych materiałów w jakikolwiek inny sposób wykraczający poza
dozwolony użytek określony przepisami ustawy z 4 lutego 1994 r. o
prawie autorskim i prawach pokrewnych (Dz. U. 1994, nr 24 poz. 83 z
późn. zm.) bez pisemnej zgody Freedom Nieruchomości Sp. z o.o. lub
podmiotów współpracujących jest zabronione i może stanowić
podstawę odpowiedzialności cywilnej oraz karnej.
Ponadto niniejsze materiały stanowią tajemnicę przedsiębiorstwa
Freedom Nieruchomości Sp. z o.o. lub podmiotów współpracujących w
rozumieniu ustawy z dnia 16 kwietnia 1993 r. o zwalczaniu nieuczciwej
konkurencji (Dz. U. z 2003 r., Nr 153, poz. 1503 z późn. zm.).
Niniejsze ogłoszenie nie stanowi oferty w rozumieniu Kodeksu
Cywilnego, lecz ma charakter informacyjny."
Sprawdź zainteresowanie tym ogłoszeniem
Wyświetlenia
Data dodania
Ostatnio widziany
Obserwujących
Wysłane zapytania
Odsłony telefonu
Powiadom o podobnych ogłoszeniach
Lokalizacja: Warszawa
Kategoria: Nieruchomości » Mieszkania » Sprzedaż
Cena: od 638500 zł do 863500 zł Powierzchnia : od 25 m2 do 33 m2
Chcę otrzymywać powiadomienia o nowych ofertach
Paula Gruszczyńska-Sko
Konto firmowe
Na Lento.pl od 02 sty 2024
Odpowiada szybko
Strona użytkownika
- Wypromuj ogłoszenie
- Zgłoś naruszenie
- Drukuj ulotkę
- Edytuj/usuń ogłoszenie
- Udostępnij ogłoszenie
- Dodaj na Facebook









