Nowoczesne 3-pokojowe mieszkanie z balkonem
Warszawa / Włochy Pokaż na mapie ›
Ogłoszenie archiwalne Wygasło: Niedziela, 25 Maj, 2025 01:55
999 499 zł
18173 zł/m2
Szczegóły ogłoszenia
- Kategoria: Mieszkania / Sprzedaż
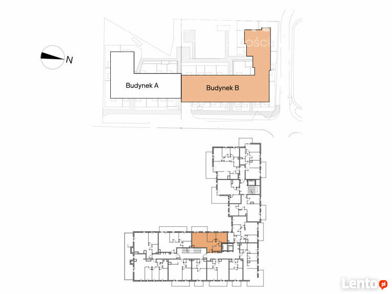
- Powierzchnia:55 m2
- Liczba pokoi:3 pokoje
- Zabudowa:Apartamentowiec
- Tech. budowy:Inne
- Piętro :7 piętro
- Liczba pięter:Wieżowiec
- Rynek:Pierwotny
- Rok budowy:2025
- Sprzedaż:Pośrednik
- Inf. dodatkowe:Balkon
- Cena: 999 499 zł / 18173 zł/m2
Opis oferty
*** 0% PROWIZJI OD KUPUJĄCEGO ***** Brak podatku 2% PCC **
Ми розмовляємо українською. We speak english.
Говорим на вашем языке.
Mamy przyjemność zaoferować Państwu nowoczesne 3-pokojowe
mieszkanie na ostatnim piętrze na nowym osiedlu w warszawskich
Włochach.
Dana inwestycja to nowoczesne, ekologiczne osiedle
mieszkalne zlokalizowane w kameralnej okolicy na pograniczu Ochoty i
Włoch doskonale skomunikowanej z centrum Warszawy.
Osiedle jest bezpieczne i komfortowe – ogrodzony teren z
całodobową ochroną, monitoringiem, systemem alarmowym. Przestrzeń
wspólna obejmuje wewnętrzne patio z pergolą, ławkami, stolikami i
zjeżdżalnią dla najmłodszych, szklarnię, w której mieszkańcy
mogą uprawiać własne rośliny.
Na terenie osiedla znajdują się miejsca parkingowe w garażu
podziemnym, boksy lokatorskie. Budynki wyróżnia zrównoważony
design i zastosowanie nowoczesnych technologii,
ułatwiających codzienne funkcjonowanie. Nowoczesne windy i szerokie
korytarze zapewniają wygodę użytkownikom, w tym rodzinom z dziećmi
i osobom starszym. Jest to przestrzeń stworzona z myślą o
komforcie i zdrowiu mieszkańców, oferująca doskonałą jakość
życia.
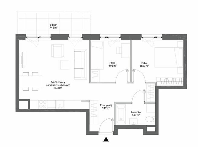
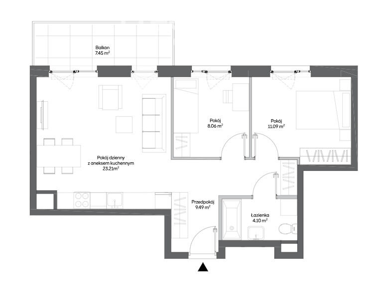
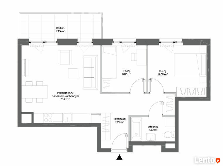
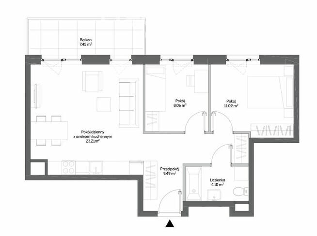
Na powierzchnie (55,95 m2) mieszkania wchodzi:
- Salon z aneksem kuchennym (23.21 m2)
- Sypialnia (11.09 m2)
- Sypialnia (8.06 m2)
- Łazienka (4.10 m2)
- Hol (9.49 m2)
Powierzchnia dodatkowa:
- Balkon (7.45 m2)
Chętnie zaprezentuję każde inne dostępne mieszkanie w tej
inwestycji.
Inwestycja wyróżnia się doskonałą lokalizacją. Bliskość stacji
kolejowej PKP Warszawa Rakowiec, licznych przystanków autobusowych i
tramwajowych umożliwia łatwy i szybki dojazd zarówno do Centrum
Warszawy jak i do Lotniska Okęcie.
W zasięgu spaceru sklepy spożywcze, placówki oświatowe,
przychodnia, punkty usługowe, kluby fitness i centra handlowe, w
tym Atrium Reduta i Blue City.
Dogodna lokalizacja dla osób lubiących aktywny wypoczynek oraz
kontakt z naturą. Park Szczęśliwicki z całorocznym stokiem
narciarskim, malowniczymi jeziorkami, kompleksem basenów, ścieżkami
rowerowymi i ogólnodostępnym sprzętem rekreacyjnym umożliwia
aktywne spędzanie czasu na świeżym powietrzu.
Zachęcam do kontaktu telefonicznego lub mailowego po więcej
informacji.
Andrzej Stasiuk
Agent Nieruchomości
@
887 - pokaż numer telefonu -
---------------------------------------------------------------------------------
Finansując zakup nieruchomości kredytem warto wcześniej sprawdzić
swoją zdolność kredytową. Nasi doradcy finansowi pomogą w
organizacji wszystkich formalności niezbędnych do uzyskania kredytu
oraz przygotują dla Państwa ofertę na bardzo preferencyjnych
warunkach.
Powyższa oferta ma charakter informacyjny i nie jest ofertą w
rozumieniu art. 66 par. 1 Kodeksu Cywilnego. Opis nieruchomości
został sporządzony na podstawie informacji uzyskanych od
właściciela i może być aktualizowany. Skontaktuj się z nami w
celu zapoznania się ze szczegółami oferty.
Właścicielem ogłoszenia wraz z jego elementami jest Freedom
Nieruchomości Sp. z o.o. lub podmioty współpracujące. Wszelkie
prawa zastrzeżone. Kopiowanie, rozpowszechnianie oraz korzystanie z
niniejszych materiałów w jakikolwiek inny sposób wykraczający poza
dozwolony użytek określony przepisami ustawy z 4 lutego 1994 r. o
prawie autorskim i prawach pokrewnych (Dz. U. 1994, nr 24 poz. 83 z
późn. zm.) bez pisemnej zgody Freedom Nieruchomości Sp. z o.o. lub
podmiotów współpracujących jest zabronione i może stanowić
podstawę odpowiedzialności cywilnej oraz karnej. Ponadto niniejsze
materiały stanowią tajemnicę przedsiębiorstwa Freedom
Nieruchomości Sp. z o.o. lub podmiotów współpracujących w
rozumieniu ustawy z dnia 16 kwietnia 1993 r. o zwalczaniu nieuczciwej
konkurencji (Dz. U. z 2003 r., Nr 153, poz. 1503 z późn. zm.).
"Właścicielem ogłoszenia wraz z jego elementami jest Freedom
Nieruchomości Sp. z o.o. lub podmioty współpracujące. Wszelkie
prawa zastrzeżone. Kopiowanie, rozpowszechnianie oraz korzystanie z
niniejszych materiałów w jakikolwiek inny sposób wykraczający poza
dozwolony użytek określony przepisami ustawy z 4 lutego 1994 r. o
prawie autorskim i prawach pokrewnych (Dz. U. 1994, nr 24 poz. 83 z
późn. zm.) bez pisemnej zgody Freedom Nieruchomości Sp. z o.o. lub
podmiotów współpracujących jest zabronione i może stanowić
podstawę odpowiedzialności cywilnej oraz karnej.
Ponadto niniejsze materiały stanowią tajemnicę przedsiębiorstwa
Freedom Nieruchomości Sp. z o.o. lub podmiotów współpracujących w
rozumieniu ustawy z dnia 16 kwietnia 1993 r. o zwalczaniu nieuczciwej
konkurencji (Dz. U. z 2003 r., Nr 153, poz. 1503 z późn. zm.).
Niniejsze ogłoszenie nie stanowi oferty w rozumieniu Kodeksu
Cywilnego, lecz ma charakter informacyjny."
Sprawdź zainteresowanie tym ogłoszeniem
Wyświetlenia
Data dodania
Ostatnio widziany
Obserwujących
Wysłane zapytania
Odsłony telefonu
Powiadom o podobnych ogłoszeniach
Lokalizacja: Warszawa
Kategoria: Nieruchomości » Mieszkania » Sprzedaż
Cena: od 849500 zł do 1149500 zł Powierzchnia : od 47 m2 do 63 m2
Chcę otrzymywać powiadomienia o nowych ofertach
To ogłoszenie jest archiwalne i może być nieaktualne.
Andrii Stasiuk
Konto firmowe
Na Lento.pl od 02 sty 2024
Odpowiada szybko
Strona użytkownika
- Wypromuj ogłoszenie
- Zgłoś naruszenie
- Edytuj/usuń ogłoszenie
- Udostępnij ogłoszenie
- Dodaj na Facebook















