12Netto 35000zł/mieś, Brutto 43000zł. Wynajmę nieruchomość w miejscowości Szówsko k. Jarosławia na którą składają ...

lokal w kamienicy PRAGA _ POŁUDNIE. światłowod. 3 pokoje kuchnia , klima tylko wieloletnia umowa /zdjecie ...

Masz swoją markę i szukasz miejsca, żeby wejść na wyższy level? W Ugly Nails Warszawa mamy wolny pokój na podnajem ...

Warszawa, Mokotów, Al. Niepodległości/ ul. Puławska, rejon Metra Wilanowska. Do wynajęcia biuro 256,9 mkw. na ...

Warszawa, Mokotów, do wynajęcia atrakcyjne powierzchnie biurowe. Dostępne moduły są różne moduły od 335 mkw. ...

Warszawa, Mokotów, w pobliżu metra Pole Mokotowskie, do wynajęcia atrakcyjne powierzchnie biurowe. Dostępne moduły ...

Warszawa, Mokotów, do wynajęcia atrakcyjne powierzchnia dla np. medycyny. Lokalizacja: Centralna lokalizacja (na ...

Warszawa, Mokotów, do wynajęcia biuro przy Al. Niepodległości / metro Racławicka. Biuro znajduje się w budynku ...

Rejon ul. Marynarskiej, do wynajęcia nowoczesne powierzchnie biurowe. Standard wykończenia, zastosowanie ...

Warszawa, Mokotów, metro Wierzbno, do wynajęcia nowoczesna powierzchnia biurowa. Dostępna jest powierzchnia całego ...

Warszawa, Mokotów, rejon ul. Rzymowskiego, do wynajęcia nowoczesna powierzchnia biurowa. Dostępne są różne moduły ...

Mokotów, metro Wierzbno. Do wynajęcia powierzchnia biurowa 767 mkw. netto na piętrze szóstym w wysokiej klasy budynku ...

Mokotów, metro Wierzbno. Do wynajęcia powierzchnia biurowa około 390 mkw. netto na piętrze szóstym w wysokiej klasy ...

Metro Racławicka, do wynajęcia powierzchnia na Mokotowie w małym budynku biurowym. Oferowana powierzchnia znajduje ...

Mokotów, do wynajęcia biuro na parterze z osobnym wejściem, rejon ul. Belwederskiej/ Chełmskiej. Samodzielny ...

Nowoczesny kompleks biurowy klasy A, położony w najspokojniejszej okolicy Biznesowego Mokotowa - z dala od zgiełku i ...

Do wynajęcia lokal biurowo-usługowy około 435 mkw. na parterze nowoczesnego budynku biurowego, dzielnica Mokotów, ...

Służewiec, Rejon ul. Domaniewskiej, czynsz 45 zł/mkw. Do wynajęcia powierzchnia 380 mkw. na piętrze drugim (całe ...

Warszawa, Mokotów, rejon Galerii Mokotów. Do wynajęcia powierzchnia, która może zostać przeznaczona na cele ...

Warszawa, Mokotów, rejon Galerii Mokotów. Do wynajęcia powierzchnia, która może zostać przeznaczona na cele ...

Warszawa, Mokotów do wynajęcia ładne biura w małym budynku biurowym. Powierzchnia piętra 321,5 mkw. Dostępne są dwa ...

Warszawa, Mokotów do wynajęcia ładne biura w małym budynku biurowym. Powierzchnia piętra 321,5 mkw. Dostępne są dwa ...

Służewiec, okolica Galerii Mokotów. Parter Do wynajęcia lokal 566 mkw. brutto przygotowany na cele medyczne. ...

Warszawa, Mokotów, Służewiec, wynajem z opcją sprzedaży. Do wynajęcia jest gotowy, w pełni dostosowany do ...

Do wynajęcia lokal o podwyższonym standardzie o powierzchni netto 713 mkw. na dziesiątym, ostatnim piętrze nowoczesnego ...

Warszawa, Mokotów, do wynajęcia samodzielne piętro w małym biurowcu. Oferowana powierzchnia piętra to 402 mkw., biuro ...

Mokotów, rejon ul. Dolnej, do wynajęcia powierzchnia biurowa 121mkw. oraz 154 mkw. netto na piętrze pierwszym. ...

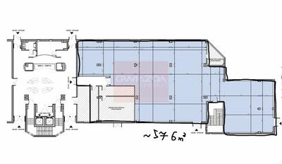
Warszawa, Mokotów, rejon ul. Postępu, parter w budynku biurowym. Dostępny jest moduły na parterze 576 mkw., lokal w ...

Mokotów, ul. Domaniewska/ Wołoska. Parter 615 mkw. Do wynajęcia powierzchnia handlowo-usługowa na parterze 615 mkw. ...

Warszawa, Mokotów, metro Wilanowska, nowoczesny budynek biurowy. Do wynajęcia powierzchnia biurowa 238 mkw. Piętro ...

Warszawa, Mokotów, Służewiec, do wynajęcia powierzchnia biurowa od 150 do 300 mkw. • Nowoczesny biurowiec w ...

Do wynajęcia lokal biurowo-usługowy około 333 mkw. netto na parterze nowoczesnego budynku biurowego, dzielnica Mokotów, ...

Warszawa, Mokotów, rejon ul. Rzymowskiego, do wynajęcia nowoczesna powierzchnia biurowa 124,83 mkw. Wysoki standard ...

Warszawa, Mokotów, rejon ul. Rzymowskiego, do wynajęcia nowoczesna powierzchnia biurowa 421,5 mkw. Wysoki standard ...

Warszawa, Mokotów, rejon ul. Rzymowskiego, do wynajęcia nowoczesna powierzchnia biurowa 263,13 mkw. Wysoki standard ...

Warszawa, Ursynów, rejon ul. Puławskiej. Nowoczesna W standardzie podwieszane sufity, podnoszone podłogi, czujniki ...

Warszawa, Mokotów, rejon ul. Rzymowskiego, do wynajęcia nowoczesna powierzchnia biurowa. Dostępne są różne moduły ...

Biuro do wynajęcia Mokotów, rejon ul. Czerniakowskiej. Dostępne powierzchnie. • 450 mkw. netto (plus ok. 90 ...





































