Mieszkanie Warszawa Włochy, Raków, Wagonowa
Warszawa Pokaż na mapie ›
Dodane: Środa, 28 Styczeń, 2026 21:58
5 000 zł
Szczegóły ogłoszenia
- Kategoria: Mieszkania / Do wynajęcia
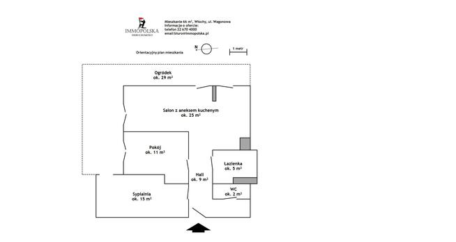
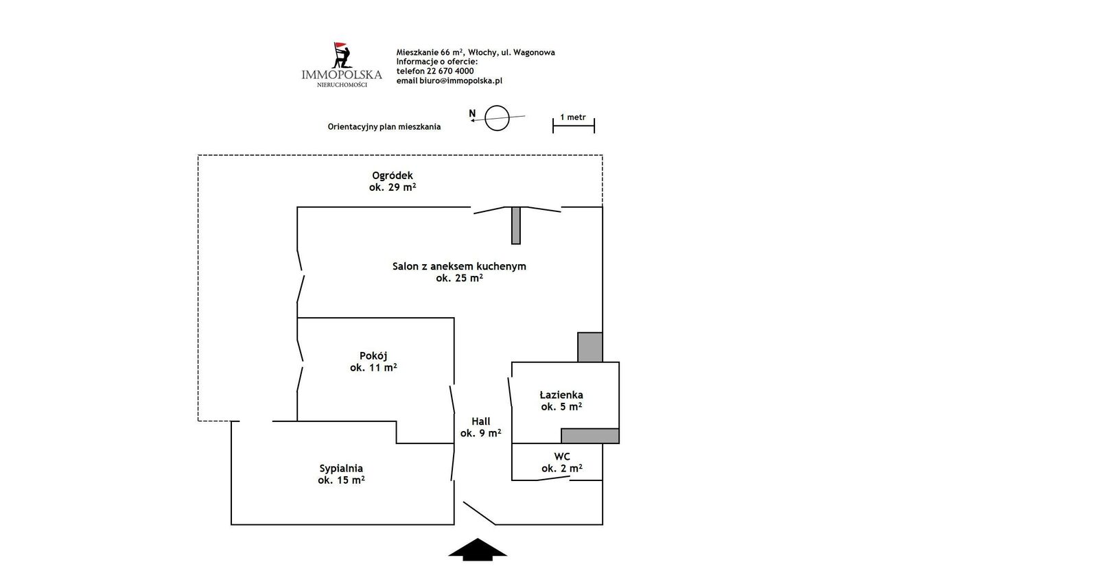
- Powierzchnia:66 m2
- Liczba pokoi:3 pokoje
- Zabudowa:Apartamentowiec
- Piętro :Parter
- Liczba pięter:5 pięter
- Sprzedaż:Pośrednik
- Cena: 5 000 zł
Opis oferty
Oferta biura nieruchomości IMMOPOLSKA (licencja nr 9165)Do wynajęcia częściowo umeblowane trzypokojowe mieszkanie z ogródkiem, w nowoczesnym apartamentowcu przy ul. Wagonowej oddanym do użytku w 2018 r.
Mieszkanie znajduje się na terenie kompleksu składającego się nowoczesnych apartamentowców. Przestrzeń mieszkania została wykonana przy użyciu jakościowych materiałów wykończeniowych. Mieszkanie zostało odświeżone (malowanie ścian).
Centralnym punktem mieszkania ekspozycji południowej jest salon z aneksem kuchennym, a przez przedpokój można wejść do dwóch oddzielnych pokoi, łazienki z wanną i pralką oraz oddzielnego WC.
Aneks kuchenny jest umeblowany i wyposażony w meble i urządzenia AGD w zabudowie: płytę elektryczną, piekarnik, zmywarkę oraz lodówkę z zamrażarką. Jeden z pokoi jest nieumeblowany z możliwością zaadoptowania go na miejsce do pracy. Z salonu oraz z każdego pokoju jest wyjście na przestronny ogródek.
Budynek znajduje się na terenie zamkniętego osiedla z ochroną. W pobliżu budynku jest targowisko przy ulicy Bakalarskiej.
Właściciel przeznaczył mieszkanie dla osób niepalących oraz bez zwierząt.
Najemcę obciążają zaliczkowo opłaty licznikowe za: prąd, ciepłą i zimną wodę, ogrzewanie oraz odbiór śmieci, w wysokości ok. 900 zł miesięcznie do szczegółowego rozliczenia.
Wymagana kaucja gwarancyjna w wysokości miesięcznego czynszu najmu.
Minimalny okres umowy wynosi 12 miesięcy.
Jako biuro nieruchomości, w przypadku podpisania u mowy, pobieramy prowizje w wysokości 70% brutto od kwoty czynszu.
Kontakt: IMMOPOLSKA, Rafał Pęk, tel. 606 - pokaż numer telefonu - .
Numer oferty: 7577
Powiadom o podobnych ogłoszeniach
Lokalizacja: Warszawa
Kategoria: Nieruchomości » Mieszkania » Do wynajęcia
Cena: od 4500 zł do 6000 zł Powierzchnia : od 56 m2 do 76 m2
Chcę otrzymywać powiadomienia o nowych ofertach
Rafał Pęk
Konto firmowe
Na Lento.pl od 24 mar 2021
Strona użytkownika
- Wypromuj ogłoszenie
- Zgłoś naruszenie
- Drukuj ulotkę
- Edytuj/usuń ogłoszenie
- Udostępnij ogłoszenie
- Dodaj na Facebook

























