Mieszkanie Warszawa gm. Targówek Targówek, Marywilska
Warszawa / Targówek Pokaż na mapie ›
Ogłoszenie archiwalne Wygasło: Poniedziałek, 07 Lipiec, 2025 22:24
619 068 zł
15477 zł/m2
Szczegóły ogłoszenia
- Kategoria: Mieszkania / Sprzedaż
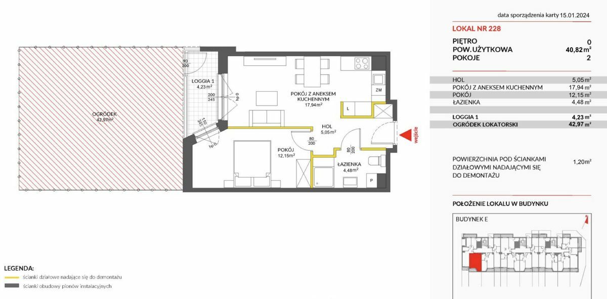
- Powierzchnia:40 m2
- Liczba pokoi:2 pokoje
- Zabudowa:Blok
- Piętro :Parter
- Liczba pięter:2 piętra
- Rynek:Pierwotny
- Rok budowy:2024
- Sprzedaż:Pośrednik
- Cena: 619 068 zł / 15477 zł/m2
Opis oferty
SZCZEGÓŁY MIESZKANIA (0 % prowizji)Oddane do użytku
Liczba pokoi: 2
Piętro : 0
salon z aneksem kuchennym (możliwość wydzielenia oddzielnej kuchni)
pokój
łazienka
loggia - dodatkowa przestrzeń do relaksu i przechowywania,
duży ogródek - prawie 42,97 m² zieleni, idealny dla dzieci, zwierząt i wypoczynku
2-pokojowe mieszkanie o powierzchni 40,82 m² z przestronnym ogródkiem 42,97 m², położone na granicy dwóch dzielnic Warszawy - Targówka i Białołęki.
Mieszkanie znajduje się na parterze nowoczesnego budynku z windą. Jest bardzo dobrze doświetlone dzięki dużym oknom, a ogródek zapewnia poczucie prywatności i komfortu życia blisko natury, bez rezygnacji z miejskich udogodnień.
LOKALIZACJA:
Szybki dojazd do centrum - zarówno samochodem, jak i komunikacją miejską,
W pobliżu sklepy, restauracje, punkty usługowe, przedszkola i szkoły, bliskość centrów handlowych (Factory Annopol, Atrium Targówek)
Liczne tereny rekreacyjne (Las Bródnowski, Park Bródnowski, Zalew Zegrzyński)i ścieżki rowerowe - idealne dla aktywnych,
Szybki dojazd do stacji Merto Bródno oraz do centrum stolicy,
Przystanek autobusowy tuż przy osiedlu.
ZALETY INWESTYCJI:
Osiedle charakteryzuje się nowoczesną architekturą oraz niską zabudową, co nadaje mu wyjątkowy, kameralny charakter. W ofercie znajdują się mieszkania o metrażach od 33.85 - 94.52 m2, z dobrze zaplanowanymi układami pomieszczeń, które zapewniają komfort i funkcjonalność. Do każdego istnieje możliwość wykupienia garażu oraz komórki lokatorskiej, co stanowi dodatkowe udogodnienie.
Nie pobieramy prowizji.
Informacje zamieszczone na tej stronie internetowej są ogłoszeniami i materiałami reklamowymi, które nie stanowią oferty w rozumieniu art. 71 Kodeksu cywilnego
Zapraszam na prezentację!
Viktoriia Artymko
883 - pokaż numer telefonu -
Numer oferty: GH583188
Sprawdź zainteresowanie tym ogłoszeniem
Wyświetlenia
Data dodania
Ostatnio widziany
Obserwujących
Wysłane zapytania
Odsłony telefonu
Powiadom o podobnych ogłoszeniach
Lokalizacja: Warszawa
Kategoria: Nieruchomości » Mieszkania » Sprzedaż
Cena: od 526000 zł do 712000 zł Powierzchnia : od 34 m2 do 46 m2
Chcę otrzymywać powiadomienia o nowych ofertach
To ogłoszenie jest archiwalne i może być nieaktualne.
Viktoriia Artymko
Konto firmowe
Na Lento.pl od 05 lip 2019
Strona użytkownika
- Wypromuj ogłoszenie
- Zgłoś naruszenie
- Edytuj/usuń ogłoszenie
- Udostępnij ogłoszenie
- Dodaj na Facebook



















