Mieszkanie 3 pokojowe z loggią | Mokotów
Warszawa / Mokotów Pokaż na mapie ›
Dodane: Piątek, 12 Grudzień, 2025 21:34
885 546 zł
14056 zł/m2
Szczegóły ogłoszenia
- Kategoria: Mieszkania / Sprzedaż
- Powierzchnia:63 m2
- Liczba pokoi:3 pokoje
- Zabudowa:Apartamentowiec
- Tech. budowy:Inne
- Piętro :1 piętro
- Liczba pięter:4 piętra
- Rynek:Pierwotny
- Rok budowy:2026
- Sprzedaż:Pośrednik
- Inf. dodatkowe:Balkon
- Cena: 885 546 zł / 14056 zł/m2
Opis oferty
****** BEZ PROWIZJI ************ brak podatku PCC (2%) ******
Inwestycja:
Komfortowe mieszkanie o powierzchni 63.48m² z loggią. Idealne dla
rodziny, pary lub kogoś, kto potrzebuje dodatkowego pokoju.
Funkcjonalny podział strefy dziennej i prywatnej zapewnia pełną
wygodę użytkowania.
Lokalizacja:
Inwestycja zlokalizowana jest na Dolnym Mokotowie — jednej z
najbardziej prestiżowych i zielonych części Warszawy. Okolica
oferuje szybki dojazd do centrum, Mostu Siekierkowskiego oraz
kluczowych punktów miasta. W pobliżu znajdują się Jeziorko
Czerniakowskie, tereny spacerowe nad Wisłą oraz liczne ścieżki
rowerowe. Mieszkańcy mają dostęp do sklepów, usług, przedszkoli,
szkół oraz centrum handlowego Sadyba Best Mall.
Otoczenie i styl życia:
To miejsce stworzone z myślą o rodzinach, osobach aktywnych i tych,
którzy chcą mieszkać w zielonej części miasta, nie rezygnując z
wygody codziennego życia. Wokół znajdują się urokliwe tereny
rekreacyjne, starorzecza, parki i jeziora, idealne na spacery, rower
czy poranny jogging. Na osiedlu zaplanowano strefę fitness, pokój
jogi, klub malucha, ekologiczne technologie, stacje ładowania aut
elektrycznych oraz bogatą małą architekturę. Liczne szkoły,
żłobki, sklepy i usługi sprawiają, że jest to przestrzeń idealna
do życia w wygodnym, przyszłościowym rytmie.
W ofercie dostępne są również inne mieszkania w tej inwestycji —
chętnie przedstawię pełną listę i doradzę w wyborze
odpowiedniego lokalu.
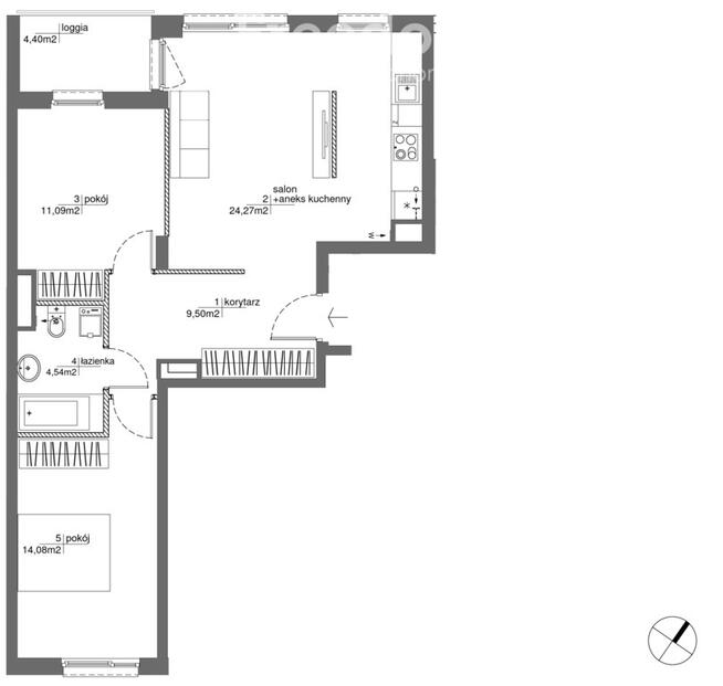
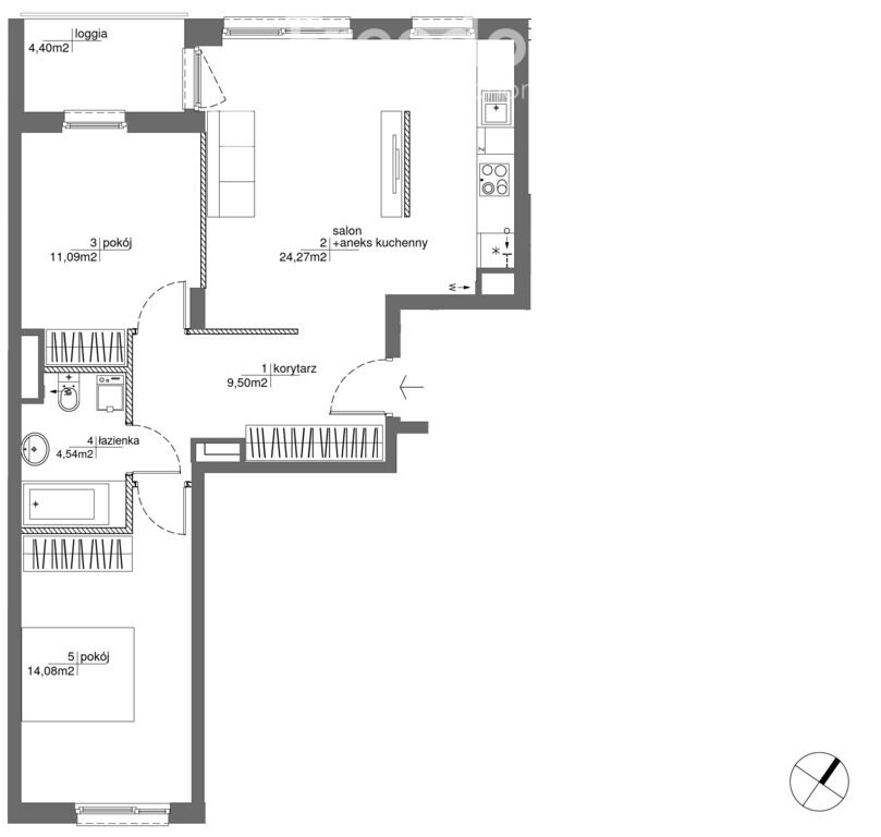
Mieszkanie składa się z:
salonu z aneksem (24,27m²) 2 pokoi (14,08m² + 11,09m²) łazienki
(4,54m²)korytarzu (9,50 m²)
do mieszkania przynależy również loggia (4,40m²)
Termin oddania: II kwartał 2026 r.
Zachęcam do kontaktu telefonicznego lub mailowego po więcej
informacji.
Feel free to contact me in English.
Iga Szumigraj
Agent Nieruchomości
@
534 - pokaż numer telefonu -
Jeśli przed zakupem musisz sprzedać swoje obecne mieszkanie lub
skorzystać z kredytu — nie martw się, pomogę Ci przejść przez
cały proces spokojnie i bez stresu.
Nasi doradcy finansowi pomogą w przygotowaniu wszystkich niezbędnych
dokumentów i zaproponują ofertę kredytu na korzystnych warunkach,
dopasowanych do Twoich potrzeb.
_____
Powyższa oferta ma charakter informacyjny i nie jest ofertą w
rozumieniu art. 66 par. 1 Kodeksu Cywilnego. Opis nieruchomości
został sporządzony na podstawie informacji uzyskanych od
właściciela i może być aktualizowany. Skontaktuj się z nami w
celu zapoznania się ze szczegółami oferty.
Właścicielem ogłoszenia wraz z jego elementami jest Freedom
Nieruchomości Sp. z o.o. lub podmioty współpracujące. Wszelkie
prawa zastrzeżone. Kopiowanie, rozpowszechnianie oraz korzystanie z
niniejszych materiałów w jakikolwiek inny sposób wykraczający poza
dozwolony użytek określony przepisami ustawy z 4 lutego 1994 r. o
prawie autorskim i prawach pokrewnych (Dz. U. 1994, nr 24 poz. 83 z
późn. zm.) bez pisemnej zgody Freedom Nieruchomości Sp. z o.o. lub
podmiotów współpracujących jest zabronione i może stanowić
podstawę odpowiedzialności cywilnej oraz karnej. Ponadto niniejsze
materiały stanowią tajemnicę przedsiębiorstwa Freedom
Nieruchomości Sp. z o.o. lub podmiotów współpracujących w
rozumieniu ustawy z dnia 16 kwietnia 1993 r. o zwalczaniu nieuczciwej
konkurencji (Dz. U. z 2003 r., Nr 153, poz. 1503 z późn. zm.).
Iga Szumigraj
Agent Nieruchomości
@
534 - pokaż numer telefonu -
Other apartment layouts in this project are also available on request.
"Właścicielem ogłoszenia wraz z jego elementami jest Freedom
Nieruchomości Sp. z o.o. lub podmioty współpracujące. Wszelkie
prawa zastrzeżone. Kopiowanie, rozpowszechnianie oraz korzystanie z
niniejszych materiałów w jakikolwiek inny sposób wykraczający poza
dozwolony użytek określony przepisami ustawy z 4 lutego 1994 r. o
prawie autorskim i prawach pokrewnych (Dz. U. 1994, nr 24 poz. 83 z
późn. zm.) bez pisemnej zgody Freedom Nieruchomości Sp. z o.o. lub
podmiotów współpracujących jest zabronione i może stanowić
podstawę odpowiedzialności cywilnej oraz karnej.
Ponadto niniejsze materiały stanowią tajemnicę przedsiębiorstwa
Freedom Nieruchomości Sp. z o.o. lub podmiotów współpracujących w
rozumieniu ustawy z dnia 16 kwietnia 1993 r. o zwalczaniu nieuczciwej
konkurencji (Dz. U. z 2003 r., Nr 153, poz. 1503 z późn. zm.).
Niniejsze ogłoszenie nie stanowi oferty w rozumieniu Kodeksu
Cywilnego, lecz ma charakter informacyjny."
Sprawdź zainteresowanie tym ogłoszeniem
Wyświetlenia
Data dodania
Ostatnio widziany
Obserwujących
Wysłane zapytania
Odsłony telefonu
Powiadom o podobnych ogłoszeniach
Lokalizacja: Warszawa
Kategoria: Nieruchomości » Mieszkania » Sprzedaż
Cena: od 752500 zł do 1018500 zł Powierzchnia : od 54 m2 do 72 m2
Chcę otrzymywać powiadomienia o nowych ofertach
Iga Szumigraj
Konto firmowe
Na Lento.pl od 02 sty 2024
Odpowiada szybko
Strona użytkownika
- Wypromuj ogłoszenie
- Zgłoś naruszenie
- Drukuj ulotkę
- Edytuj/usuń ogłoszenie
- Udostępnij ogłoszenie
- Dodaj na Facebook











