M3 | Idealny układ | Komfortowe | Bez Prowizji
Warszawa Pokaż na mapie ›
Ogłoszenie archiwalne Wygasło: Piątek, 11 Lipiec, 2025 04:40
997 823 zł
14674 zł/m2
Szczegóły ogłoszenia
- Kategoria: Mieszkania / Sprzedaż
- Powierzchnia:68 m2
- Liczba pokoi:3 pokoje
- Zabudowa:Apartamentowiec
- Tech. budowy:Inne
- Piętro :Parter
- Liczba pięter:4 piętra
- Rynek:Pierwotny
- Rok budowy:2025
- Sprzedaż:Pośrednik
- Cena: 997 823 zł / 14674 zł/m2
Opis oferty
** Brak podatku 2% PCC ***** 0% PROWIZJI OD KUPUJĄCEGO w tej inwestycji ***
Mam przyjemność zaoferować Państwu 3-pokojowe mieszkanie na
parterze z ogródkiem w nowej inwestycji na Pradze Południe w
odległości 500 m od planowanej stacji Metra Mińska.
To idealna propozycja dla osób ceniących nowoczesne wnętrza i
funkcjonalny układ. Duże okna zapewniają doskonałe doświetlenie
wnętrz, a przestronny ogród pozwala cieszyć się świeżym
powietrzem i relaksem po długim dniu. Inwestycja znajduje się w
pobliżu kluczowych węzłów komunikacyjnych, oferując łatwy
dostęp do każdej części miasta.
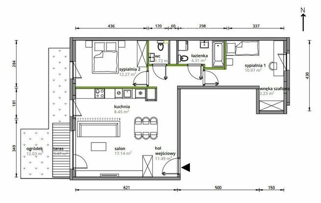
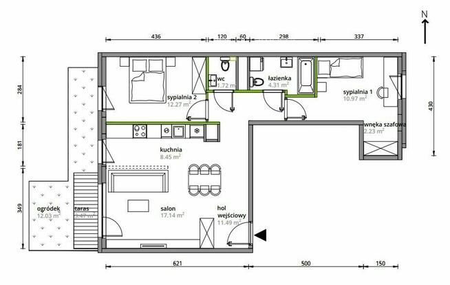
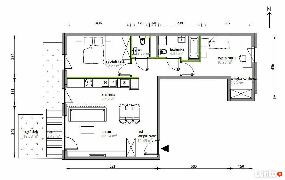
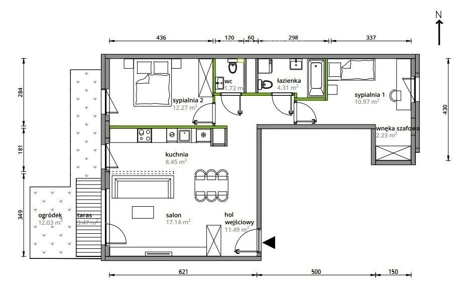
Mieszkanie składa się z:
- Pokoju dziennego z aneksem kuchennym (25,59 m2)
- Pokoju 1 (12,27 m2)
- Pokoju 2 (10,97 m2)
- Łazienki (4,31 m2)
- Toalety (1,72 m2)
- Przedpokoju (11,49 m2)
+ Ogródek (12,03 m2) w tym taras (3,47 m2)
Posiadam w swojej ofercie i chętnie zaprezentuję każde inne
dostępne mieszkanie w tej inwestycji.
W ramach inwestycji dostępne są dodatkowo miejsca postojowe w
garażu podziemnym (nieobowiązkowe) w cenie 40 000 zł, a także
nieobowiązkowe komórki lokatorskie.
Życie na Pradze Południe to pełna wygoda – w zasięgu
15-minutowego spaceru znajdziesz wszystko, co jest kluczowe dla
nowoczesnego stylu życia. Bliskość centrów handlowych, szkół,
placówek medycznych oraz licznych atrakcji kulturalnych sprawia, że
codzienne sprawy załatwisz szybko i sprawnie.
Inwestycja oferuje pełen wachlarz udogodnień:
Rozbudowana infrastruktura – szkoły, żłobki, przychodnie, sklepy
i usługi w zasięgu ręki. Wszystko to razem tworzy budynek klasy
premium. Aktywności w okolicy - w okolicy znajdują się liczne
miejsca kulturalne i rozrywkowe, takie jak: Restauracje, Punkty
usługowe, Sklepy, Hipermarket, Parki.
Świetna komunikacja miejska (przystanki tramwajowe i stacja PKP
Warszawa Grochów) sprawia, że dojazd do śródmieścia trwa 10
minut.
Dla miłośników kulinariów dostępne są różnorodne restauracje i
kawiarnie, a bliskość centrów handlowych zapewnia dostęp do
ulubionych sklepów i usług.
Inwestycja oferuje również bezpieczeństwo i wygodę dla
mieszkańców, w postaci punktu odbioru paczek czy stacji ładowania
pojazdów elektrycznych i stref rekreacyjnych.
-------------------------------
Aby umówić się na prezentację, zapraszam do kontaktu:
Piotr Kostyra
Agent Nieruchomości
@
536 - pokaż numer telefonu -
-------------------------------
Jeżeli Twój zakup wiąże się ze sprzedażą innej nieruchomości
daj znać! Bezpiecznie przeprowadzę Cię przez cały proces.
Finansując zakup nieruchomości kredytem warto wcześniej sprawdzić
swoją zdolność kredytową. Nasi doradcy finansowi pomogą w
organizacji wszystkich formalności niezbędnych do uzyskania kredytu
oraz przygotują dla Państwa ofertę na bardzo preferencyjnych
warunkach.
Powyższa oferta ma charakter informacyjny i nie jest ofertą w
rozumieniu art. 66 par. 1 Kodeksu Cywilnego. Opis nieruchomości
został sporządzony na podstawie informacji uzyskanych od
właściciela i może być aktualizowany. Skontaktuj się z nami w
celu zapoznania się ze szczegółami oferty.
Właścicielem ogłoszenia wraz z jego elementami jest Freedom
Nieruchomości Sp. z o.o. lub podmioty współpracujące. Wszelkie
prawa zastrzeżone. Kopiowanie, rozpowszechnianie oraz korzystanie z
niniejszych materiałów w jakikolwiek inny sposób wykraczający poza
dozwolony użytek określony przepisami ustawy z 4 lutego 1994 r. o
prawie autorskim i prawach pokrewnych (Dz. U. 1994, nr 24 poz. 83 z
późn. zm.) bez pisemnej zgody Freedom Nieruchomości Sp. z o.o. lub
podmiotów współpracujących jest zabronione i może stanowić
podstawę odpowiedzialności cywilnej oraz karnej. Ponadto niniejsze
materiały stanowią tajemnicę przedsiębiorstwa Freedom
Nieruchomości Sp. z o.o. lub podmiotów współpracujących w
rozumieniu ustawy z dnia 16 kwietnia 1993 r. o zwalczaniu nieuczciwej
konkurencji (Dz. U. z 2003 r., Nr 153, poz. 1503 z późn. zm.).
"Właścicielem ogłoszenia wraz z jego elementami jest Freedom
Nieruchomości Sp. z o.o. lub podmioty współpracujące. Wszelkie
prawa zastrzeżone. Kopiowanie, rozpowszechnianie oraz korzystanie z
niniejszych materiałów w jakikolwiek inny sposób wykraczający poza
dozwolony użytek określony przepisami ustawy z 4 lutego 1994 r. o
prawie autorskim i prawach pokrewnych (Dz. U. 1994, nr 24 poz. 83 z
późn. zm.) bez pisemnej zgody Freedom Nieruchomości Sp. z o.o. lub
podmiotów współpracujących jest zabronione i może stanowić
podstawę odpowiedzialności cywilnej oraz karnej.
Ponadto niniejsze materiały stanowią tajemnicę przedsiębiorstwa
Freedom Nieruchomości Sp. z o.o. lub podmiotów współpracujących w
rozumieniu ustawy z dnia 16 kwietnia 1993 r. o zwalczaniu nieuczciwej
konkurencji (Dz. U. z 2003 r., Nr 153, poz. 1503 z późn. zm.).
Niniejsze ogłoszenie nie stanowi oferty w rozumieniu Kodeksu
Cywilnego, lecz ma charakter informacyjny."
Sprawdź zainteresowanie tym ogłoszeniem
Wyświetlenia
Data dodania
Ostatnio widziany
Obserwujących
Wysłane zapytania
Odsłony telefonu
Powiadom o podobnych ogłoszeniach
Lokalizacja: Warszawa
Kategoria: Nieruchomości » Mieszkania » Sprzedaż
Cena: od 848000 zł do 1147500 zł Powierzchnia : od 58 m2 do 78 m2
Chcę otrzymywać powiadomienia o nowych ofertach
To ogłoszenie jest archiwalne i może być nieaktualne.
Piotr Kostyra
Konto firmowe
Na Lento.pl od 02 sty 2024
Odpowiada szybko
Strona użytkownika
- Wypromuj ogłoszenie
- Zgłoś naruszenie
- Edytuj/usuń ogłoszenie
- Udostępnij ogłoszenie
- Dodaj na Facebook









