M2 z antresolą i dużym ogrodem I Metro I Bemowo
Warszawa / Bemowo Pokaż na mapie ›
Ogłoszenie archiwalne Wygasło: Niedziela, 17 Sierpień, 2025 18:00
775 000 zł
14352 zł/m2
Szczegóły ogłoszenia
- Kategoria: Mieszkania / Sprzedaż
- Powierzchnia:54 m2
- Liczba pokoi:2 pokoje
- Zabudowa:Apartamentowiec
- Tech. budowy:Inne
- Piętro :Parter
- Liczba pięter:3 piętra
- Rynek:Pierwotny
- Rok budowy:2027
- Sprzedaż:Pośrednik
- Inf. dodatkowe:Balkon
- Cena: 775 000 zł / 14352 zł/m2
Opis oferty
*** 0% PROWIZJI OD KUPUJĄCEGO ***** Brak podatku 2% PCC **
Мы говорим на вашем языке, позвоните
нам!
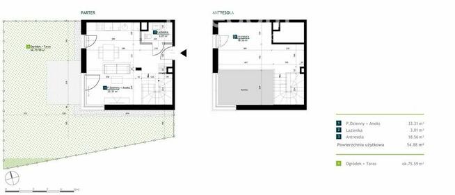
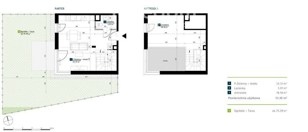
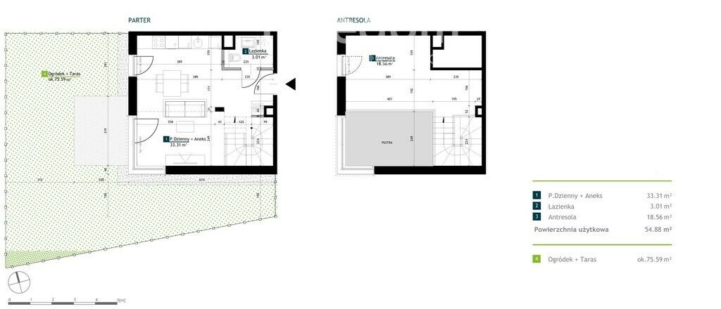
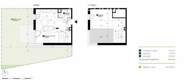
Mamy przyjemność zaoferować dwupoziomowe, przestronne mieszkanie z
antresolą, dużym salonem, tarasem i 76-metrowym, prywatnym ogrodem
na nowoczesnym osiedlu mieszkaniowym na warszawskim Bemowie.
Podniesiony ogródek zapewnia większą prywatność, a duże
panoramiczne okna doświetlają wnętrze, dodając mu przestrzeni i
naturalnego światła.
W skład mieszkania wchodzi:
1. Salon z aneksem (33.31 m2)
2. Antresola (18.56 m2)
3. Łazienka (3.01 m2)
Mieszkanie posiada ogród z tarasem (75.99 m2).
W planach jest również parking podziemny:
Koszt miejsca postojowego w garażu 41 000 zł lub miejsce rodzinne 62
000 zł.
Możliwy jest zakup komórki lokatorskiej.
Chętnie zaprezentuję każde inne dostępne mieszkanie w tej
inwestycji.
Wszystkie mieszkania będą wyposażone w ogródki, balkony, tarasy
lub antresole. Dodatkowo, każde mieszkanie zostanie wyposażone w
system smart home Appartme, umożliwiający zarządzanie energią i
generowanie oszczędności.
Na terenie osiedla zaplanowano dwa zielone dziedzińce – jeden z
ogrodem deszczowym, a drugi z przestrzenią rekreacyjną, w tym dwoma
placami zabaw dla dzieci. Dla komfortu mieszkańców, lokale
znajdujące się bliżej drogi zostaną wyposażone w okna o wyższej
izolacji akustycznej .
Komunikacja Planowana bliskość dwóch stacji II linii metra –
Chrzanów i Karolin (w budowie) – zapewni szybki dojazd do centrum i
innych dzielnic Warszawy.
Dobrze rozwinięta sieć komunikacji miejskiej na Bemowie – łatwy
dostęp do przystanków autobusowych i tramwajowych.
Drogi: Bliskość ulic takich jak Lazurowa, Połczyńska oraz szybki
dojazd do obwodnicy Warszawy (S8).
Infrastruktura Edukacja: W sąsiedztwie znajdują się żłobki,
przedszkola i szkoły podstawowe.
Sklepy i usługi: W pobliżu liczne sklepy (Biedronka, Lidl, lokalne
sklepy spożywcze) oraz punkty usługowe, apteki, salony kosmetyczne
itp.
Rekreacja: W planach budowa nowego parku miejskiego, istnieją także
place zabaw i tereny zielone (np. Fort Chrzanów).
Opieka zdrowotna: W pobliżu działają przychodnie, apteki i gabinety
specjalistyczne.
Galerie handlowe: Niedaleko znajdują się większe centra handlowe
(np. Wola Park).
Zalety lokalizacji Bemowo intensywnie się rozwija – nowe inwestycje
mieszkaniowe i infrastrukturalne zwiększają wartość
nieruchomości.
Cisza i spokój: Mimo dobrej komunikacji, okolica jest stosunkowo
cicha i sprzyjająca rodzinom.
Bliskość natury: Liczne tereny zielone i planowana przez miasto
budowa parku zwiększają komfort życia.
Potencjał inwestycyjny: Dzięki metru i dynamicznemu rozwojowi
dzielnicy, lokalizacja ma duży potencjał wzrostu wartości
nieruchomości.
Smart rozwiązania: Nowoczesne budownictwo z inteligentnymi systemami
zarządzania mieszkaniem (smart home).
Zachęcam do kontaktu telefonicznego lub mailowego po więcej
informacji.
Uliana Belyaeva
Agent Nieruchomości
@
730 - pokaż numer telefonu -
-------------------------------
Finansując zakup nieruchomości kredytem warto wcześniej sprawdzić
swoją zdolność kredytową. Nasi doradcy finansowi pomogą w
organizacji wszystkich formalności niezbędnych do uzyskania kredytu
oraz przygotują dla Państwa ofertę na bardzo preferencyjnych
warunkach.
________________________
Powyższa oferta ma charakter informacyjny i nie jest ofertą w
rozumieniu art. 66 par. 1 Kodeksu Cywilnego. Opis nieruchomości
został sporządzony na podstawie informacji uzyskanych od
właściciela i może być aktualizowany. Skontaktuj się z nami w
celu zapoznania się ze szczegółami oferty.
Właścicielem ogłoszenia wraz z jego elementami jest Freedom
Nieruchomości Sp. z o.o. lub podmioty współpracujące. Wszelkie
prawa zastrzeżone. Kopiowanie, rozpowszechnianie oraz korzystanie z
niniejszych materiałów w jakikolwiek inny sposób wykraczający poza
dozwolony użytek określony przepisami ustawy z 4 lutego 1994 r. o
prawie autorskim i prawach pokrewnych (Dz. U. 1994, nr 24 poz. 83 z
późn. zm.) bez pisemnej zgody Freedom Nieruchomości Sp. z o.o. lub
podmiotów współpracujących jest zabronione i może stanowić
podstawę odpowiedzialności cywilnej oraz karnej. Ponadto niniejsze
materiały stanowią tajemnicę przedsiębiorstwa Freedom
Nieruchomości Sp. z o.o. lub podmiotów współpracujących w
rozumieniu ustawy z dnia 16 kwietnia 1993 r. o zwalczaniu nieuczciwej
konkurencji (Dz. U. z 2003 r., Nr 153, poz. 1503 z późn. zm.).
*** 0% BUYER COMMISSION ***
** No 2% PCC tax **
Мы говорим на вашем языке, позвоните
нам!
We are pleased to offer a spacious studio apartment with a balcony in
a modern housing estate in Warsaw's Bemowo district.
The apartment includes:
1. Living room with kitchenette (24.34 m2)
2. Bathroom (4.12 m2)
3. Communication (4.52 m2)
The apartment has a balcony (5.76 m2).
There are also plans for an underground car park:
The cost of a parking space in the garage is PLN 41,000
It is possible to purchase a storage unit.
I will be happy to show you any other available apartments in this
development.
All apartments will be equipped with gardens, balconies, terraces or
mezzanines. Additionally, each apartment will be equipped with the
Appartme smart home system, which allows for energy management and
generating savings.
Two green courtyards are planned on the estate – one with a rain
garden and the other with a recreational area, including two
playgrounds for children. For the comfort of residents, premises
located closer to the road will be equipped with windows with higher
acoustic insulation.
Communication The planned proximity of two stations of metro line II
– Chrzanów and Karolin (under construction) – will ensure quick
access to the city centre and other districts of Warsaw.
Well-developed public transport network in Bemowo – easy access to
bus and tram stops.
Roads: Proximity to streets such as Lazurowa, Połczyńska and quick
access to the Warsaw ring road (S8).
Infrastructure Education: There are nurseries, kindergartens and
primary schools in the vicinity.
Shops and services: Nearby there are numerous shops (Biedronka, Lidl,
local grocery stores) and service points, pharmacies, beauty salons,
etc.
Recreation: There are plans to build a new city park, there are also
playgrounds and green areas (e.g. Fort Chrzanów).
Healthcare: There are clinics, pharmacies and specialist offices
nearby.
Shopping malls: There are larger shopping centers nearby (e.g. Wola
Park).
Advantages of location Bemowo is developing rapidly – new housing
and infrastructure investments increase the value of real estate.
Peace and quiet: Despite good transport connections, the area is
relatively quiet and family-friendly.
Proximity to nature: Numerous green areas and the construction of a
park planned by the city increase the comfort of life.
Investment potential: Thanks to the metro and the dynamic development
of the district, the location has great potential for increasing the
value of the property.
Smart solutions: Modern construction with intelligent home management
systems (smart home).
I encourage you to contact me by phone or email for more information.
Ulyana Belyaeva
Real Estate Agent
@
730 - pokaż numer telefonu -
-----------------------------
When financing the purchase of real estate with a loan, it is worth
checking your creditworthiness in advance. Our financial advisors will
help you organize all the formalities necessary to obtain a loan and
will prepare an offer for you on very preferential terms.
________________________
The above offer is for information purposes only and is not an offer
within the meaning of Article 66, paragraph 1 of the Civil Code. The
description of the property was prepared based on information obtained
from the owner and may be updated. Contact us to learn more about the
offer.
The owner of the advertisement and its elements is Freedom
Nieruchomości Sp. z oo or cooperating entities. All rights reserved.
Copying, distributing and using these materials in any other way going
beyond the permitted use specified in the provisions of the Act of 4
February 1994 on copyright and related rights (Journal of Laws 1994,
No. 24, item 83, as amended) without the written consent of Freedom
Nieruchomości Sp. z oo or cooperating entities is prohibited and may
constitute the basis for civil and criminal liability. In addition,
these materials constitute a trade secret of Freedom Nieruchomości
Sp. z oo or cooperating entities within the meaning of the Act of 16
April 1993 on combating unfair competition (Journal of Laws of 2003,
No. 153, item 1503, as amended).
"Właścicielem ogłoszenia wraz z jego elementami jest Freedom
Nieruchomości Sp. z o.o. lub podmioty współpracujące. Wszelkie
prawa zastrzeżone. Kopiowanie, rozpowszechnianie oraz korzystanie z
niniejszych materiałów w jakikolwiek inny sposób wykraczający poza
dozwolony użytek określony przepisami ustawy z 4 lutego 1994 r. o
prawie autorskim i prawach pokrewnych (Dz. U. 1994, nr 24 poz. 83 z
późn. zm.) bez pisemnej zgody Freedom Nieruchomości Sp. z o.o. lub
podmiotów współpracujących jest zabronione i może stanowić
podstawę odpowiedzialności cywilnej oraz karnej.
Ponadto niniejsze materiały stanowią tajemnicę przedsiębiorstwa
Freedom Nieruchomości Sp. z o.o. lub podmiotów współpracujących w
rozumieniu ustawy z dnia 16 kwietnia 1993 r. o zwalczaniu nieuczciwej
konkurencji (Dz. U. z 2003 r., Nr 153, poz. 1503 z późn. zm.).
Niniejsze ogłoszenie nie stanowi oferty w rozumieniu Kodeksu
Cywilnego, lecz ma charakter informacyjny."
Sprawdź zainteresowanie tym ogłoszeniem
Wyświetlenia
Data dodania
Ostatnio widziany
Obserwujących
Wysłane zapytania
Odsłony telefonu
Powiadom o podobnych ogłoszeniach
Lokalizacja: Warszawa
Kategoria: Nieruchomości » Mieszkania » Sprzedaż
Cena: od 659000 zł do 891500 zł Powierzchnia : od 46 m2 do 62 m2
Chcę otrzymywać powiadomienia o nowych ofertach
To ogłoszenie jest archiwalne i może być nieaktualne.
Uliana Belyaeva
Konto firmowe
Na Lento.pl od 02 sty 2024
Odpowiada szybko
Strona użytkownika
- Wypromuj ogłoszenie
- Zgłoś naruszenie
- Edytuj/usuń ogłoszenie
- Udostępnij ogłoszenie
- Dodaj na Facebook

















