Lokal użytkowy Warszawa Wola, Obozowa
Warszawa / Wola Pokaż na mapie ›
Dodane: Sobota, 14 Luty, 2026 12:21
79 640 zł
Szczegóły ogłoszenia
- Kategoria: Biura i lokale / Do wynajęcia
- Przeznaczenie:Biurowe
- Powierzchnia:1448 m2
- Sprzedaż:Pośrednik
- Cena: 79 640 zł
Opis oferty
Do wynajęcia: budynek biurowy o pow. 1448 m2 na warszawskiej Woli,poleca Property Office (tel. 731 - pokaż numer telefonu - , mail: @
Bez prowizji
Nowoczesna i elastyczna w aranżacji powierzchnia biurowa w biurowcu na warszawskiej Woli, w okolicach ul. Obozowej.
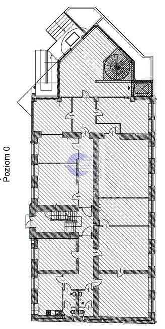
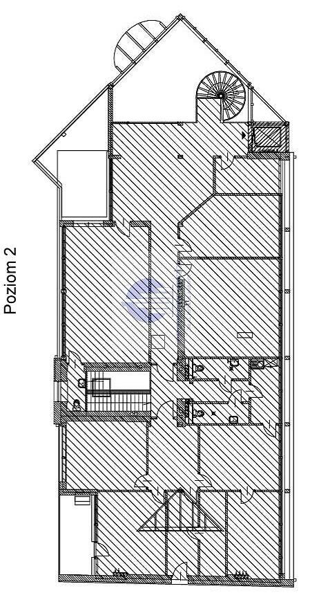
Budynek oferuje Najemcy 3 poziomy powierzchni biurowej:
-parter: 404m2
-1 piętro:363 m2
-2 piętro: 337 m2
oraz poziom -1 o pow. 344m2
Jasne, obszerne wnętrza umożliwiają elastyczną aranżację, dostosowaną pod indywidualne potrzeby najemcy.
Powierzchnia w układzie gabinetowym, z optymalnym dostępem naturalnego światła.
Powierzchnia oferowana jest bez mebli.
Obecnie jest to podział gabinetowy.
Standard powierzchni biurowej:
-klimatyzacja energooszczędna
-podwieszane sufity 30 i 50 cm
-regulacja temperatury-regulacja wilgotności powietrza
-podział powierzchni ściankami (karton-gips)
-wykładzina w modułach
-optymalny dostęp naturalnego światła
Na miesięczne koszty najmu netto składają się:
-czynsz: 79641 PLN
-opłaty eksploatacyjne: 25 PLN/m2 (36200 PLN),
-ogrzewanie,
-zużycie mediów,
-sprzątanie lokalu,
Spersonalizowaną ofertę finansową, klient otrzymuje po prezentacji lokalu.
Internet:
-opcjonalnie,
-Najemca indywidualnie podpisuje umowę z operatorem telekomunikacyjnym.
Możliwość podpisania umowy z 3 operatorami.
Parking (cena netto za miejsce/za miesiąc):
-Parking naziemny: 325,00 zł netto
-Parking podziemny: 575,00 zł netto
-200 naziemnych miejsc parkingowych,
-50 miejsc w garażu podziemnym.
Współczynnik miejsc parkingowych: 1/30.
Miejsca dla gości.
Obiekt oferuje najemcom wypożyczalnię skuterów, dzięki którym w łatwy i szybki sposób można dostać się do pozostałych części miasta.
Umowa:
-czas trwania umowy: do ustalenia.
-kaucja,
Opis budynku:
4-kondygnacyjny budynek biurowy.
Standard budynku:
-recepcja na parterze,
-Klimatyzacja,
-pełne okablowanie,
-Tryskacze i czujniki dymu,
-Recepcja,
-Ochrona budynku,
-Kable światłowodowe
-dwa źródła zasilania,
-system zarządzania budynkiem-BMS,
Zalety lokalizacji:
-Bliskość nowo otwartej stacji Młynów,
-Przystanek tramwajowy blisko głównego wejścia do kompleksu,
-Dojazd samochodem do centrum miasta możliwy w 10 minut,
-Bliskość kolei: SKM, KM ,
Do podanych cen należy doliczyć podatek VAT w wysokości 23 %
Zdjęcia pokazują ogólny standard budynku.
Zapraszam na spotkanie w celu obejrzenia lokalu
Zachęcam do kontaktu telefonicznego pod numerem: 731 - pokaż numer telefonu -
Po więcej ofert warszawskich biur, magazynów czy lokali usługowych do wynajęcia, zapraszam na stronę:
https://www.propertyoffice.pl/
Treść niniejszego ogłoszenia nie stanowi oferty handlowej w rozumieniu art.66 1 kodeksu cywilnego oraz innych właściwych przepisów prawnych.
Treść niniejszego ogłoszenia nie stanowi oferty handlowej w rozumieniu art.66 1 kodeksu cywilnego oraz innych właściwych przepisów prawnych.
Oferta wysłana z programu IMO dla biur nieruchomości
Numer oferty: 355270
Sprawdź zainteresowanie tym ogłoszeniem
Wyświetlenia
Data dodania
Ostatnio widziany
Obserwujących
Wysłane zapytania
Odsłony telefonu
Powiadom o podobnych ogłoszeniach
Lokalizacja: Warszawa
Kategoria: Nieruchomości » Biura i lokale » Do wynajęcia
Cena: od 67500 zł do 91500 zł Powierzchnia : od 1231 m2 do 1665 m2
Chcę otrzymywać powiadomienia o nowych ofertach
- Wypromuj ogłoszenie
- Zgłoś naruszenie
- Drukuj ulotkę
- Edytuj/usuń ogłoszenie
- Udostępnij ogłoszenie
- Dodaj na Facebook












