Lokal użytkowy Warszawa Wola, Mirów, Rondo ONZ
Warszawa Pokaż na mapie ›
Ogłoszenie archiwalne Wygasło: Wtorek, 03 Luty, 2026 07:14
58 500 zł
Szczegóły ogłoszenia
- Kategoria: Biura i lokale / Do wynajęcia
- Przeznaczenie:Handel i Usługi
- Powierzchnia:900 m2
- Sprzedaż:Pośrednik
- Cena: 58 500 zł
Opis oferty
Do wynajmu powierzchnia komercyjna, Warszawa - Wola, okolice Ronda ONZ.Budynek przy skrzyżowaniu ulic w odległości ok. 0,8 km od ścisłego centrum miasta (ok. 0,9 km od Dworca Centralnego PKP), w sąsiedztwie metro "Rondo ONZ".
Okolica z pełną infrastrukturą miejską (metro, tramwaj, biurowce, sklepy, usługi, itd.).
Ofertę stanowi powierzchnia na dwóch poziomach jako niezależny moduł biurowo-usługowy. Okablowanie komputerowe (strukturalne).
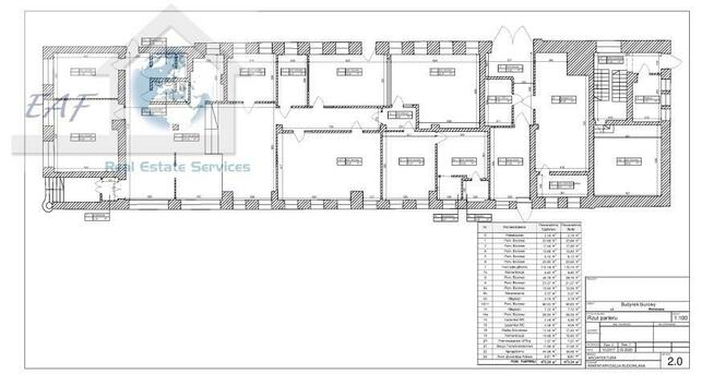
Parter ca 400m: wejście bezpośrednio z chodnika, (drugie wyjście ewakuacyjne), składa się z:
- 9-10 pokoi (ca 7-50m);
- dwóch toalet (jedna dla niepełnosprawnych);
- hol/korytarz (szer. 160-175cm);
- pomieszczenie techniczne;
- kuchnia;
- recepcja.
I piętro 500m: wejście z wewnętrznej klatki schodowej (szer. 253cm) oraz wyjście ewakuacyjna, składa się z:
- 15 pokoi biurowych (ca 14-61m);
- dwóch toalet również dla niepełnosprawnych (jedna z 3 punktami);
- kuchnia 7,2m;
- serwerownia (trzy pomieszczenia);
- archiwum (dwa pomieszczenia)
- pomieszczenie techniczne;
- hol/korytarz 84,3m (szer. 150-165cm).
Oferowaną powierzchnię można zaaranżować na potrzeby przyszłego Najemcy.
Budynek konstrukcja murowana z wewnętrznymi słupami, ściany nośne w przeważającej ilości zewnętrzne, wewnętrzne tylko i wyłącznie w pionach klatek schodowych i wejścia do budynku.
- klatka schodowa (szer. 253cm).
Pokoje na parterze i I piętrze (ścianki działowe lekka konstrukcja).
Dodatkowe zalety
stan techniczny:
- dobry (właściciel przewiduje remont oferowanej powierzchni);
- winda (jest możliwość wybudowania jeśli będzie taka potrzeba i warunki techniczne będą na to pozwalały;
- wejście z ulicy oraz z wewnętrznego dziedzińca;
- witryna;
Instalacje, stan dobry:
- woda, kanalizacja, C.O. miejskie (opomiarowane);
- energia elektryczna;
- klimatyzacja;
- wentylacja i p/poż w fazie projektu i wykonania przez Wynajmującego;
- internet (światłowód);
Okna: plastikowe;
Powierzchnia dodatkowa: piwnica (wys. 200cm) Wynajmujący jest gotów rozważyć i wykonać podkop zgodnie z prawem budowlanym by spełniała wszystkie warunki techniczne do bezpiecznego użytkowania przez przyszłego Najemcę.
Bezpieczeństwo: drzwi antywłamaniowe, domofon/wideofon, alarm, monitoring/kamery;
Parking: podziemna hala garażowa (5 miejsc parkingowych).
Czynsz najmu 65,00 PLN netto/m plus koszt zużytych mediów oraz wywóz odpadów stałych.
Kaucja gwarancyjna (dwumiesięczny czynsz najmu brutto).
Oferta wysłana z programu IMO dla biur nieruchomości
Numer oferty: 114266
Sprawdź zainteresowanie tym ogłoszeniem
Wyświetlenia
Data dodania
Ostatnio widziany
Obserwujących
Wysłane zapytania
Odsłony telefonu
Powiadom o podobnych ogłoszeniach
Lokalizacja: Warszawa
Kategoria: Nieruchomości » Biura i lokale » Do wynajęcia
Cena: od 49500 zł do 67500 zł Powierzchnia : od 765 m2 do 1035 m2
Chcę otrzymywać powiadomienia o nowych ofertach
To ogłoszenie jest archiwalne i może być nieaktualne.
Jacek Wtulich
Konto firmowe
Na Lento.pl od 02 sie 2019
Strona użytkownika
- Wypromuj ogłoszenie
- Zgłoś naruszenie
- Drukuj ulotkę
- Edytuj/usuń ogłoszenie
- Udostępnij ogłoszenie
- Dodaj na Facebook












