Lokal użytkowy Warszawa Ursynów, Filipiny Płaskowickiej
Warszawa / Ursynów Pokaż na mapie ›
Dodane: Wtorek, 31 Marzec, 2026 00:17
22 000 zł
Szczegóły ogłoszenia
- Kategoria: Biura i lokale / Do wynajęcia
- Przeznaczenie:Handel i Usługi
- Powierzchnia:447 m2
- Sprzedaż:Pośrednik
- Cena: 22 000 zł
Opis oferty
Warszawa - Do wynajęcia: lokal usługowo-biurowy o pow 447 m2 na warszawskim Ursynowie, w okolicach ul. Płaskowickiej,poleca Agencja Nieruchomości Property Office (tel. 731 - pokaż numer telefonu - , mail: @
-----------Bez prowizji od Najemcy-----------
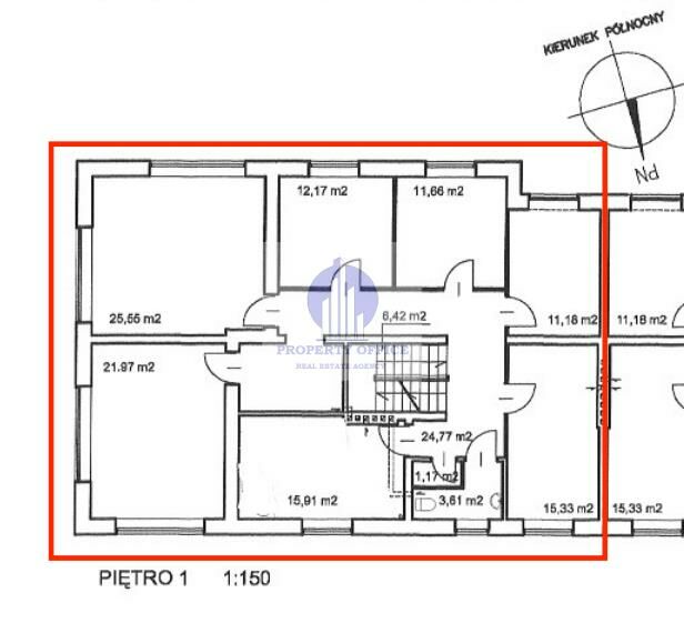
Moduł biurowy w układzie gabinetowym zajmujący połowę (3 kondygnacje) budynku biurowego,
Obecna aranżacja:
-parter: magazyn
-pierwsze i drugie piętro: pokoje biurowe i sale konferencyjne,
Klimatyzacja.
Wysokość: 2,5-28m
Powierzchnia z dobrym dostępem światła dziennego.
Możliwość reklamy zewnetrznej: płatna opcja dodatkowa..
Na miesięczne koszty najmu netto składają się:
-czynsz : 22.000 PLN
-koszty eksploatacyjne: 10 PLN/m2,
Razem netto: 26470 PLN,
-media: woda, gaz, energia elektryczna,
Opłaty naliczane są od powierzchni brutto, tzn. z wliczonym współczynnikiem powierzchni wspólnych.
Spersonalizowaną ofertę finansową, klient otrzymuje po prezentacji lokalu.
Najemca indywidualnie podpisuje umowę z operatorem telekomunikacyjnym.
Parking naziemny: 10 miejsc
Abonament miesiacny: 150 PLN/stanowisko,
Umowa:
-czas określony: 3-5 lat
-kaucja w wysokości 3-miesięcznego czynszu z opłatami eksploatacyjnymi (brutto)
Opis budynku:
Wolnostojący budynek biurowy składający się z dwóch niezależnych części biurowych z pomieszczeniami magazynowymi
Budynek posiada 3 kondygnacje (parter, 1 i 2 piętro).
Na parterze znajduje się powierzchnia magazynowa z bramą rozładunkową.
wysokiej jakości sieć techniczna (internetowa, telefoniczna, komputerowa),
Zalety lokalizacji:
W pobliżu kompleksu zlokalizowane są przystanki autobusowe oraz południowa obwodnica Warszawy S8/S2.
Usytuowanie zapewnia doskonałą komunikację oraz dogodny dojazd do lotniska.
Do podanych cen należy doliczyć podatek VAT w wysokości 23 %
Zdjęcia pokazują ogólny standard budynku.
Zapraszam na spotkanie w celu obejrzenia lokalu
Zachęcam do kontaktu telefonicznego pod numerem: 731 - pokaż numer telefonu -
Po więcej ofert warszawskich biur, magazynów czy lokali usługowych do wynajęcia, zapraszam na stronę:
https://www.propertyoffice.pl/
Treść niniejszego ogłoszenia nie stanowi oferty handlowej w rozumieniu art.66 1 kodeksu cywilnego oraz innych właściwych przepisów prawnych.
Treść niniejszego ogłoszenia nie stanowi oferty handlowej w rozumieniu art.66 1 kodeksu cywilnego oraz innych właściwych przepisów prawnych.
Oferta wysłana z programu IMO dla biur nieruchomości
Numer oferty: 359992
Sprawdź zainteresowanie tym ogłoszeniem
Wyświetlenia
Data dodania
Ostatnio widziany
Obserwujących
Wysłane zapytania
Odsłony telefonu
Powiadom o podobnych ogłoszeniach
Lokalizacja: Warszawa
Kategoria: Nieruchomości » Biura i lokale » Do wynajęcia
Cena: od 18500 zł do 25500 zł Powierzchnia : od 380 m2 do 514 m2
Chcę otrzymywać powiadomienia o nowych ofertach
- Wypromuj ogłoszenie
- Zgłoś naruszenie
- Drukuj ulotkę
- Edytuj/usuń ogłoszenie
- Udostępnij ogłoszenie
- Dodaj na Facebook




