Lokal użytkowy Warszawa Targówek, Bródno, Wysockiego Piotra
Warszawa Pokaż na mapie ›
Ogłoszenie archiwalne Wygasło: Wtorek, 03 Luty, 2026 07:14
4 200 000 zł
Szczegóły ogłoszenia
- Kategoria: Biura i lokale / Sprzedaż
- Przeznaczenie:Produkcja i Przemysł
- Powierzchnia:753 m2
- Sprzedaż:Pośrednik
- Cena: 4 200 000 zł
Opis oferty
Do wynajmu lub sprzedaży obiekt komercyjny na Targówku (Bródno).W sąsiedztwie usługi, handel. Dobre połączenia komunikacyjne.
Budynek po remoncie w 2017 roku, trzy wejścia (główne do budynku oraz dwa do hali produkcyjnej).
Działka 543m (tereny U20 - usługowo-przemysłowe).
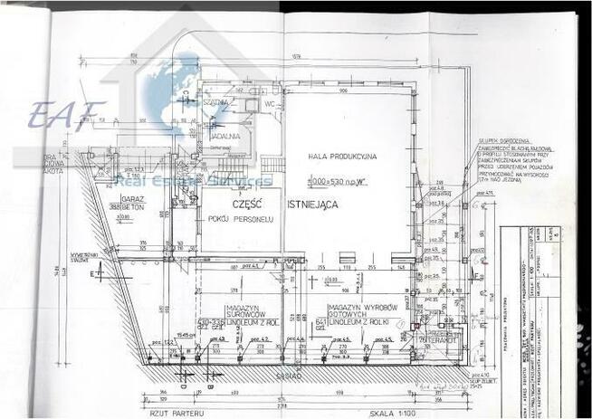
Ofertę ca 750 m stanowi powierzchnia:
- piwnica (powierzchnia gospodarcza, kotłownia);
- parter hala ca 200 m (wysokość 530 cm) z bramą (podwójna) wjazdową, dodatkowa mała brama, powierzchnia biurowa (pokój) ca 60m, WC;
- półpiętro (wysokość 300 cm) socjal z kuchnią ca 20 m, WC (3 pkt), biuro projektowe ca 60m z widokiem na halę produkcyjną;
- piętro - ca 400m wysokość 425 cm, hala produkcyjna z powierzchnią socjalną (toalety, aneks kuchenny).
Ogrzewanie własne, gazowe (nowy piec dwu funkcyjny), kanalizacja, woda miejska, wentylacja, internet, siła.
Wynajem:
Czynsz najmu 30.000,00 PLN netto plus opłaty licznikowe oraz kaucja gwarancyjna w wysokości dwumiesięcznego czynszu najmu .
Sprzedaż:
4,2 mln PLN
Oferta wysłana z programu IMO dla biur nieruchomości
Numer oferty: 114089
Sprawdź zainteresowanie tym ogłoszeniem
Wyświetlenia
Data dodania
Ostatnio widziany
Obserwujących
Wysłane zapytania
Odsłony telefonu
Powiadom o podobnych ogłoszeniach
Lokalizacja: Warszawa
Kategoria: Nieruchomości » Biura i lokale » Sprzedaż
Cena: od 3570000 zł do 4830000 zł Powierzchnia : od 640 m2 do 866 m2
Chcę otrzymywać powiadomienia o nowych ofertach
To ogłoszenie jest archiwalne i może być nieaktualne.
Jacek Wtulich
Konto firmowe
Na Lento.pl od 02 sie 2019
Strona użytkownika
- Wypromuj ogłoszenie
- Zgłoś naruszenie
- Drukuj ulotkę
- Edytuj/usuń ogłoszenie
- Udostępnij ogłoszenie
- Dodaj na Facebook






















