Lokal użytkowy Warszawa Ochota, Mszczonowska
Warszawa / Ochota Pokaż na mapie ›
Dodane: Piątek, 06 Luty, 2026 00:26
4 408 EUR
Szczegóły ogłoszenia
- Kategoria: Biura i lokale / Do wynajęcia
- Przeznaczenie:Biurowe
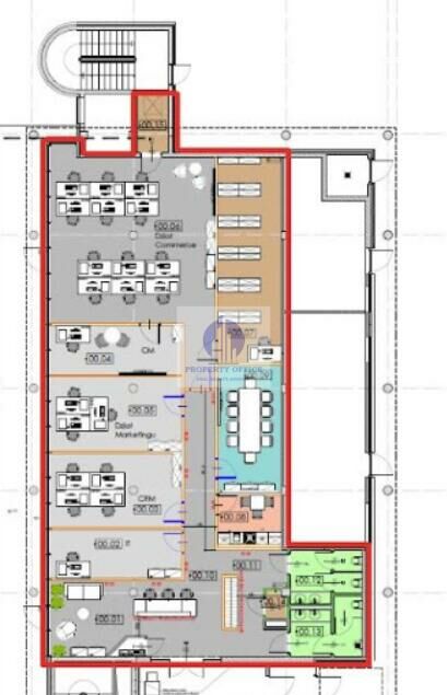
- Powierzchnia:304 m2
- Sprzedaż:Pośrednik
- Cena: 4 408 EUR
Opis oferty
Do wynajęcia: lokal biurowy o pow. 304 m2 na parterze eleganckiego biurowca w okolicach ul. Mszczonowskiej, na warszawskiej Ochocie.poleca Agencja Nieruchomości Property Office (tel. 731 - pokaż numer telefonu - , mail: @
BEZ PROWIZJI
Powierzchnia znajduje się na parterze i posiada dwa niezależne wejścia - od strony recepcji głównej oraz patio budynku.
Biuro jest wykończone w wysokim standardzie, z otwartymi sufitami i układem mieszanym: open space, pokoje do pracy, sala konferencyjna oraz pomieszczenia pomocnicze.
Lokal posiada własne toalety, a wysokość pomieszczeń wynosi 3,05 m.
Idealnie sprawdzi się zarówno pod klasyczne biuro, jak i punkt obsługi klienta dzięki oddzielnemu wejściu z zewnątrz.
Możliwość dostosowania układu powierzchni do indywidualnych potrzeb najemcy.
Klimatyzacja.
Otwierane okna.
Podwieszane sufity.
Wykładzina dywanowa.
Na miesięczne koszty najmu netto składają się:
-czynsz: 4408 EUR,
-opłaty eksploatacyjne: 26,70 PLN/m2,
-koszt zużytych mediów według liczników,
Opłaty naliczane są od powierzchni brutto, tzn. z wliczonym współczynnikiem powierzchni wspólnych (7,23-7,40%).
Spersonalizowaną ofertę finansową, klient otrzymuje po prezentacji lokalu.
Internet:odrębna umowa z operatorem telekomunikacyjnym.
Ogólnodostępne wifi przy głównej recepcji w budynku.
Do użytku Najemców i ich gości oddano nowe sale konferencyjne, przeznaczone do wynajmu krótkoterminowego z możliwością łatwego dostosowania ustawienia do zmiennych potrzeb użytkowników.
Parking:
Do dyspozycji Najemców 219 miejsc parkingowych podziemnych i naziemnych.
Infrastrukturę dla rowerzystów, tj. szafki, prysznice i nowe miejsca parkingowe.
-Miejsce postojowe: 60 EUR/ miesiąc,
-Miejsce w garażu podziemnym:80 EUR/ miesiąc,
Współczynnik miejsc parkingowych : 1/47m2.
Umowa:
-czas określony:5 lat
-kaucja w wysokości 3-miesięcznego czynszu z opłatami eksploatacyjnymi (brutto)
Opis budynku:
Kompleks biurowy,w którego skład wchodzą 4 budynki.
Recepcja na parterze.
Windy.
Kontrola dostępu.
Ochrona.
Dostęp dla niepełnosprawnych.
Reprezentacyjne lobby.
Zielona strefa wypoczynku.
Biurowiec znajduje się w sąsiedztwie Blue City, Centrum Handlowego Reduta oraz Dworca Zachodniego.
Bliskość przystanków komunikacji miejskiej zapewnia dogodne połączenie z innymi dzielnicami Warszawy,
Do podanych cen należy doliczyć podatek VAT w wysokości 23 %
Zdjęcia pokazują ogólny standard budynku.
Zapraszam na spotkanie w celu obejrzenia lokalu
Zachęcam do kontaktu telefonicznego pod numerem: 731 - pokaż numer telefonu -
Po więcej ofert warszawskich biur, magazynów czy lokali usługowych do wynajęcia, zapraszam na stronę:
https://www.propertyoffice.pl/
Treść niniejszego ogłoszenia nie stanowi oferty handlowej w rozumieniu art.66 1 kodeksu cywilnego oraz innych właściwych przepisów prawnych.
Treść niniejszego ogłoszenia nie stanowi oferty handlowej w rozumieniu art.66 1 kodeksu cywilnego oraz innych właściwych przepisów prawnych.
Oferta wysłana z programu IMO dla biur nieruchomości
Numer oferty: 354802
Sprawdź zainteresowanie tym ogłoszeniem
Wyświetlenia
Data dodania
Ostatnio widziany
Obserwujących
Wysłane zapytania
Odsłony telefonu
Powiadom o podobnych ogłoszeniach
Lokalizacja: Warszawa
Kategoria: Nieruchomości » Biura i lokale » Do wynajęcia
Cena: od 66500 zł do 90000 zł Powierzchnia : od 258 m2 do 350 m2
Chcę otrzymywać powiadomienia o nowych ofertach
- Wypromuj ogłoszenie
- Zgłoś naruszenie
- Drukuj ulotkę
- Edytuj/usuń ogłoszenie
- Udostępnij ogłoszenie
- Dodaj na Facebook














