Lokal użytkowy Warszawa gm. Praga-Południe, 21 Pułku Piechoty Dzieci Warszawy
Warszawa Pokaż na mapie ›
Odświeżone: Niedziela, 04 Styczeń, 2026 14:29
945 000 zł
Szczegóły ogłoszenia
- Kategoria: Biura i lokale / Sprzedaż
- Przeznaczenie:Handel i Usługi
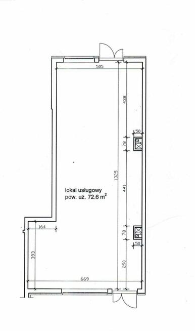
- Powierzchnia:72 m2
- Sprzedaż:Pośrednik
- Cena: 945 000 zł
Opis oferty
Nasza agencja prezentuje wyjątkową ofertę - lokal użytkowy w jednej z najbardziej atrakcyjnych części Ursusa - osiedle Skorosze.Powierzchnia: 72,6 m²
Lokalizacja: ul. Dzieci Warszawy
Wejścia: frontowe od ulicy oraz dodatkowe od zaplecza
Aktualnie lokal funkcjonuje jako restauracja z kuchnią polską - z dużą bazą stałych klientów, stylowym wystrojem, świetnie zorganizowanym zapleczem i ogródkiem sezonowym.
Możliwości zakupu:
Pusty lokal - cena: 945 000 zł
Restauracja z pełnym wyposażeniem i przejęciem działalności - cena do uzgodnienia
Atuty lokalizacji:
serce osiedla Skorosze - gęsta zabudowa mieszkaniowa i duży ruch pieszych
w pobliżu Centrum Handlowe Skorosze, Lidl, Biedronka, Rossmann, szkoły, przedszkola i liczne punkty usługowe
bardzo dobra komunikacja z centrum Warszawy i szybki dojazd do obwodnicy
Uniwersalne przeznaczenie lokalu:
Nieruchomość idealnie nadaje się nie tylko pod gastronomię, ale również pod inne rodzaje działalności
To doskonała propozycja zarówno dla inwestorów, jak i przedsiębiorców poszukujących dobrze położonego lokalu z ogromnym potencjałem.
Numer oferty: 911767
Sprawdź zainteresowanie tym ogłoszeniem
Wyświetlenia
Data dodania
Ostatnio widziany
Obserwujących
Wysłane zapytania
Odsłony telefonu
Powiadom o podobnych ogłoszeniach
Lokalizacja: Warszawa
Kategoria: Nieruchomości » Biura i lokale » Sprzedaż
Cena: od 803500 zł do 1087000 zł Powierzchnia : od 61 m2 do 83 m2
Chcę otrzymywać powiadomienia o nowych ofertach
Tetiana Mazhuha
Konto firmowe
Na Lento.pl od 25 kwi 2025
Odpowiada szybko
Strona użytkownika
- Wypromuj ogłoszenie
- Zgłoś naruszenie
- Drukuj ulotkę
- Edytuj/usuń ogłoszenie
- Udostępnij ogłoszenie
- Dodaj na Facebook










