Lokal użytkowy Warszawa Białołęka, Żerań, Fleminga Aleksandra
Warszawa Pokaż na mapie ›
Dodane: Poniedziałek, 23 Marzec, 2026 16:26
24 978 zł
Szczegóły ogłoszenia
- Kategoria: Biura i lokale / Do wynajęcia
- Przeznaczenie:Inne przeznaczenie
- Powierzchnia:560 m2
- Sprzedaż:Pośrednik
- Cena: 24 978 zł
Opis oferty
Do wynajmu pom. magazynowo-produkcyjne w W-wie na Białołęce/Żeraniu.Budynek, w którym mieści się oferta, zlokalizowany na terenie Parku Technicznego Tarchomin, w sąsiedztwie Polfy Tarchomin, Urzędu Celnego i Centrum Handlowego Marywilska 44.
Bliski dojazd z ul. Modlińskiej i Płochocińskiej.
Komunikacja miejska linie autobusowe nr 128; 186; 314; 511 i 723.
Obiekt (kompleks) jest całodobowo chroniony z dużym parkingiem, teren ogrodzony i utwardzony.
Przyłącze internetowe. Wszystkie media miejskie (woda, kanalizacja, C.O.).
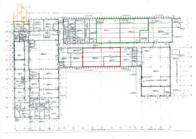
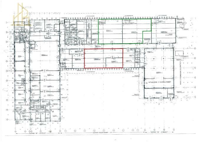
Ofertę stanowi pow. kom. na parterze z dostępem z wewnętrznego korytarza hali (dwa wejścia ).
Składa się z dwóch powierzchni 278,32 m (na rzucie oznaczona nr "49" kolorem pomarańczowym) i powierzchni 282,20 m (na rzucie oznaczona nr "50" kolorem żółtym). Obie powierzchnie są obok siebie przedzielone ścianą z drzwiami z płyty warstwowej z wełną (na rzucie oznaczone kolorem zielonym).
Dodatkowo można nająć kolejną pow. kom. w tym budynku (oznaczone na rzucie nr "64"; "64a" i "65" kolorem czerwonym) 343,10 m w cenie netto 15.459,53 PLN/m-c. Wejścia do tej powierzchni z wewnętrznego korytarza (dwa). Stanowią jedną całość z wydzielonym pomieszczeniem wewnątrz nr "64A" o pow. 64,93 m (jest wejście tylko z pomieszczenia "64"). W pom. ozn. "64" doprowadzona jest woda i kanalizacja miejska.
Budynek hali wybudowany w 2008 roku o wysokości 6m, wykonany z płyty warstwowej, konstrukcja metalowa, dach z blachy ocieplony wełną, pokryty od góry tworzywem sztucznym tzw. membrana, stolarka okienna plastikowa, podłoga chemoutwardzalna, Centrale Ogrzewanie tradycyjne grzejnikowe, wentylacja mechaniczna.
Instalacja elektryczna 220 kW oraz siła, wszystkie pomieszczenia są połączone z kompresorownią, wejście do pomieszczeń z korytarza, na korytarzu dwa WC.
Hala nie posiada rampy, ochrona całodobowa, budynek z aktualnym przeglądem. plac wokół hali wyasfaltowany i wybetonowany, dojazd droga asfaltową od strony skrzyżowań dwóch ulic.
Na terenie kompleksu jest możliwość poruszania i manewrowania samochodami ciężarowymi typu TIR.
Nośność posadzki, jest duża ze względu, że poprzedni Najemca miał na niej posadowione obrabiarki, piece do malowania , po podłodze poruszały się wózki widłowe.
W czynsz najmu jest 10 miejsc postojowych stałych dla samochodów osobowych.
Dodatkowo można nająć jeszcze pomieszczenia biurowe (biurowiec dwukondygnacyjny z windą), socjalne (aneks kuchenny) oraz miejsca postojowe na samochód osobowy (150,00 PLN/każde miejsce netto).
Czynsz najmu netto plus koszty mediów (woda, kanalizacja, C.O., energia elektryczna, internet-światłowód, ponadto udział w wspólnej pow. dla kompleksu. Dodatkowo opłata za wywóz odpadów stałych.
Kaucja gwarancyjna w wysokości trzymiesięcznego czynszu najmu brutto.
Oferta wysłana z programu IMO dla biur nieruchomości
Numer oferty: 114701
Sprawdź zainteresowanie tym ogłoszeniem
Wyświetlenia
Data dodania
Ostatnio widziany
Obserwujących
Wysłane zapytania
Odsłony telefonu
Powiadom o podobnych ogłoszeniach
Lokalizacja: Warszawa
Kategoria: Nieruchomości » Biura i lokale » Do wynajęcia
Cena: od 21000 zł do 28500 zł Powierzchnia : od 476 m2 do 644 m2
Chcę otrzymywać powiadomienia o nowych ofertach
Jacek Wtulich
Konto firmowe
Na Lento.pl od 02 sie 2019
Strona użytkownika
- Wypromuj ogłoszenie
- Zgłoś naruszenie
- Drukuj ulotkę
- Edytuj/usuń ogłoszenie
- Udostępnij ogłoszenie
- Dodaj na Facebook






