LOKAL BIUROWY - Warszawa Mokotów
Warszawa / Mokotów Pokaż na mapie ›
Odświeżone: Czwartek, 26 Luty, 2026 11:46
8 500 zł
Szczegóły ogłoszenia
- Kategoria: Biura i lokale / Do wynajęcia
- Przeznaczenie:Biurowe
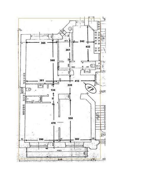
- Powierzchnia:104 m2
- Sprzedaż:Pośrednik
- Cena: 8 500 zł
Opis oferty
Lokal biurowy o pow.104 m, Stary Mokotów.Elegancki, przestronny lokal biurowy, zlokalizowany w przedwojennej kamienicy.
Liczba pomieszczeń biurowych: 5.
Dodatkowa przestrzeń: reprezentacyjny, przestronny hol.
Piętro: 4 (kamienica 5 piętrowa).
Stan: bardzo dobry, podłoga: wykładzina dywanowa biurowa.
Umeblowanie: lokal nieumeblowany do indywidualnej aranżacji.
Klimatyzacja.
Idealne miejsce na: Kancelarię prawną lub notarialną, Agencję reklamową, marketingową, Gabinet doradztwa / psychologiczny. Pracownię projektową. Inne ciche działalności biurowe.
Cena najmu: 8 500 zł /m-c + opłaty administracyjne do Spółdzielni ( ok 1400) Kaucja : Czynsz jednomiesięczny.
Umowa : min 1 rok.
Agencja pobiera prowizje.
POLECAM !!
TEL: 609 - pokaż numer telefonu -
Treść niniejszego ogłoszenia nie stanowi oferty handlowej w rozumieniu Kodeksu Cywilnego.
Oferta wysłana z programu IMO dla biur nieruchomości
Numer oferty: 889
Sprawdź zainteresowanie tym ogłoszeniem
Wyświetlenia
Data dodania
Ostatnio widziany
Obserwujących
Wysłane zapytania
Odsłony telefonu
Powiadom o podobnych ogłoszeniach
Lokalizacja: Warszawa
Kategoria: Nieruchomości » Biura i lokale » Do wynajęcia
Cena: od 7000 zł do 10000 zł Powierzchnia : od 88 m2 do 120 m2
Chcę otrzymywać powiadomienia o nowych ofertach
Barbara Dzięcioł
Konto firmowe
Na Lento.pl od 15 mar 2022
Odpowiada szybko
Strona użytkownika
- Wypromuj ogłoszenie
- Zgłoś naruszenie
- Drukuj ulotkę
- Edytuj/usuń ogłoszenie
- Udostępnij ogłoszenie
- Dodaj na Facebook






















