Kopińska, Stara Ochota kamienica 3,06 m wysokie
Warszawa / Ochota Pokaż na mapie ›
Dodane: Środa, 04 Luty, 2026 17:31
880 000 zł
13968 zł/m2
Szczegóły ogłoszenia
- Kategoria: Mieszkania / Sprzedaż
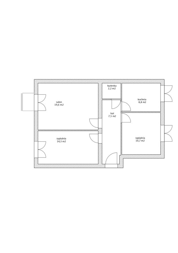
- Powierzchnia:63 m2
- Liczba pokoi:3 pokoje
- Zabudowa:Kamienica
- Piętro :4 piętro
- Liczba pięter:4 piętra
- Rynek:Pierwotny
- Rok budowy:1951
- Sprzedaż:Pośrednik
- Cena: 880 000 zł / 13968 zł/m2
Opis oferty
Oferta dodana za pomocą Multiportalu BeBrokerNa sprzedaż 3-pokojowe kamieniczne mieszkanie znajdujące się na Starej Ochocie przy ul. Kopińskiej 26.
BUDYNEK
Kamienica wybudowana w 1951 roku (z cegły!). Bardzo wysokie wnętrza (3,06 m), grube mury. Budynek po wszystkich ważnych remontach. W budynku nie ma windy. Wszystkie media miejskie.
MIESZKANIE
Mieszkanie ma powierzchnie jest położone na 4, ostatnim piętrze. Nad mieszkaniem znajduje się docieplona strefa buforowa - nikt nie chodzi nad głową.
3 pokoje, oddzielna, duża kuchnia z oknem, łazienka i przedpokój z miejscem na duże szafy wnękowe oraz niewielki balkon.
Układ mieszkania daje ogromne możliwości aranżacyjne - można zmienić układ, również na mieszkanie czteropokojowe.
Piękne, drewniane podłogi z długiej, litej deski w całym mieszkaniu - można je odrestaurować.
Okna plastikowe, zmienione grzejniki oraz instalacje wodno kanalizacyjne oraz C.O.
Wysokie wnętrze daje poczucie przestronności, duże okna z ekspozycją wschód-zachód zapewniają dobre doświetlenie. Stan mieszkania - do remontu.
LOKALIZACJA
Stara Ochota, obok Hali Kopińskiej., blisko Parków (Park Szczęśliwiecki). Blisko Hala Banacha CH Blue City, Reduta, Park Szczęśliwiecki . Do Dworca Zachodniego 800 m. W pobliżu pełna infrastruktura, ścieżki rowerowe, punkty usługowe, szkoły, klimatyczne restauracje i kawiarnie. Blisko Uniwersytetu Medycznego, niektórych wydziałów UW i Politechniki.
Pełna własność, możliwość zakupu na kredyt.
Jesteśmy agencją nieruchomosci i za świadczone usługi pobieramy prowizję.
Treść niniejszego ogłoszenia nie stanowi oferty handlowej w rozumieniu Kodeksu Cywilnego.
Telefon: 666 - pokaż numer telefonu -
Powiadom o podobnych ogłoszeniach
Lokalizacja: Warszawa
Kategoria: Nieruchomości » Mieszkania » Sprzedaż
Cena: od 748000 zł do 1012000 zł Powierzchnia : od 54 m2 do 72 m2
Chcę otrzymywać powiadomienia o nowych ofertach
- Wypromuj ogłoszenie
- Zgłoś naruszenie
- Drukuj ulotkę
- Edytuj/usuń ogłoszenie
- Udostępnij ogłoszenie
- Dodaj na Facebook




















