Gotowe do zamieszkania mieszkanie w świetnej lokalizacji – t
Warszawa / Żoliborz Pokaż na mapie ›
Odświeżone: Poniedziałek, 17 Listopad, 2025 12:16
390 000 zł
21667 zł/m2
Szczegóły ogłoszenia
- Kategoria: Mieszkania / Sprzedaż
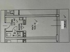
- Powierzchnia:18 m2
- Liczba pokoi:1 pokój
- Zabudowa:Blok
- Tech. budowy:Wielka Płyta
- Piętro :4 piętro
- Liczba pięter:Wieżowiec
- Rynek:Wtórny
- Rok budowy:1986
- Stan:Do zamieszkania
- Forma kuchni:Aneks
- Sprzedaż:Pośrednik
- Inf. dodatkowe:Winda, Piwnica, Miejsce parkingowe
- Cena: 390 000 zł / 21667 zł/m2
- Ulica: Zygmunta Krasińskiego
Opis oferty
Na sprzedaż: komfortowe mieszkanie w atrakcyjnej lokalizacji!Cena: 390 000 PLN
Na sprzedaż przytulne mieszkanie idealne dla singla, pary lub jako inwestycja pod wynajem. Lokal położony w spokojnej, dobrze skomunikowanej okolicy, w sąsiedztwie pełnej infrastruktury handlowo-usługowej.
Najważniejsze atuty:
funkcjonalny układ pomieszczeń,
jasne i ustawne pokoje,
łazienka z wanną,
miejsce parkingowe w cenie,
czysta, zadbana klatka schodowa,
blisko przystanki komunikacji miejskiej.
Cena: 395 000 PLN
Forma własności: pełna własność
Stan prawny: uregulowany, bez obciążeń
Sprawdź zainteresowanie tym ogłoszeniem
Wyświetlenia
Data dodania
Ostatnio widziany
Obserwujących
Wysłane zapytania
Odsłony telefonu
Powiadom o podobnych ogłoszeniach
Lokalizacja: Warszawa
Kategoria: Nieruchomości » Mieszkania » Sprzedaż
Cena: od 331500 zł do 448500 zł Powierzchnia : od 15 m2 do 21 m2
Chcę otrzymywać powiadomienia o nowych ofertach
Metrohouse
Konto firmowe
Na Lento.pl od 07 paź 2025
Strona użytkownika
- Wypromuj ogłoszenie
- Zgłoś naruszenie
- Drukuj ulotkę
- Edytuj/usuń ogłoszenie
- Udostępnij ogłoszenie
- Dodaj na Facebook











