Dom Warszawa Wawer, Zerzeń
Warszawa Pokaż na mapie ›
Odświeżone: Wtorek, 18 Listopad, 2025 09:47
850 000 zł
11184 zł/m2
Szczegóły ogłoszenia
- Kategoria: Domy / Sprzedaż
- Powierzchnia:76 m2
- Liczba pokoi:4 pokoje
- Pow. działki:60 m2
- Rynek:Wtórny
- Rok budowy:2025
- Sprzedaż:Pośrednik
- Cena: 850 000 zł / 11184 zł/m2
Opis oferty
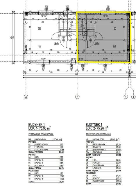
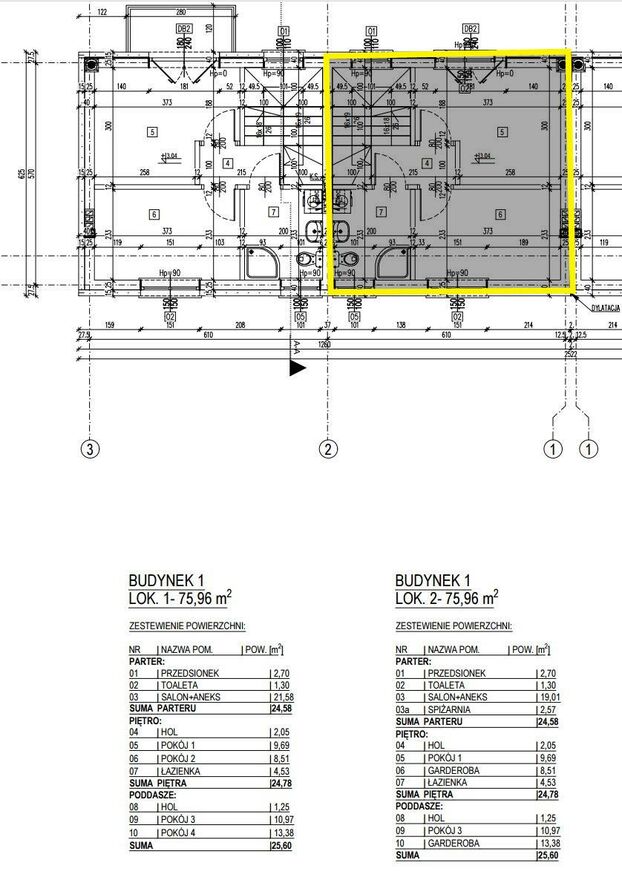
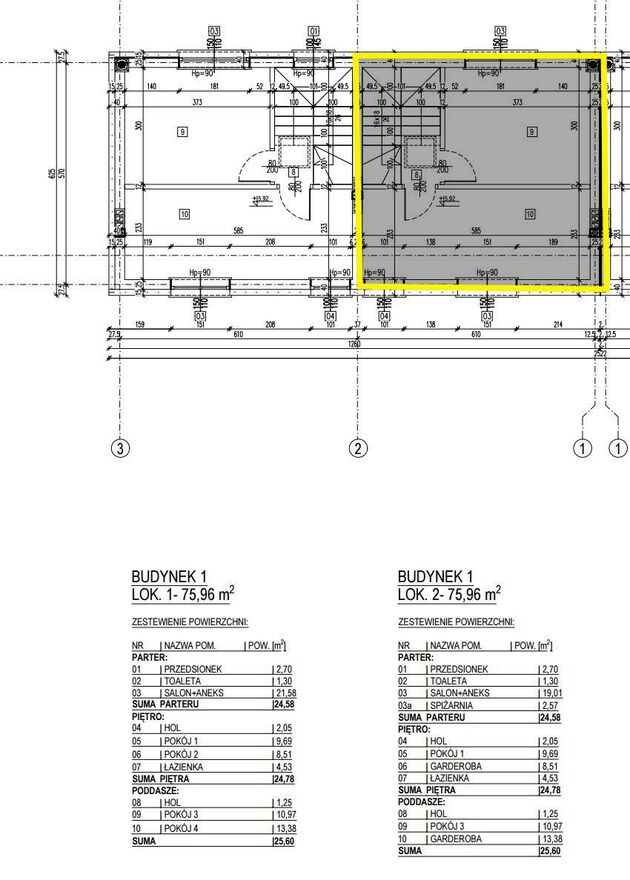
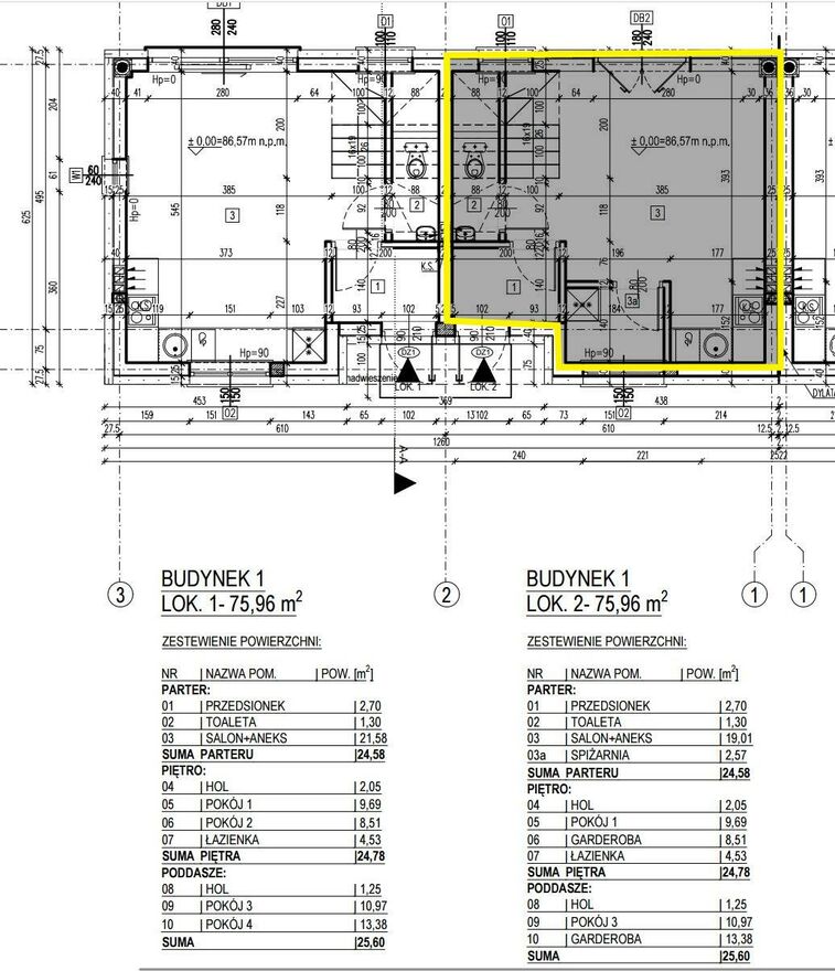
Sprzedam atrakcyjny lokal 75,96m2 z ogródkiem, 2 miejsca postojowe w Wawrze osiedle- Borków w okolicy ul Trakt Lubelski/ul ChodzieskaLokal bez czynszowy o łącznej powierzchni ok. 75,96m2 znajduje się na dwóch kondygnacjach z poddaszem i ogródkiem ok 60 m2.
Mieszkanie funkcjonalne z przemyślanym rozkładem pomieszczeń:
Parter :
Salon 19,01m2 z aneksem kuchennym z wyjściem na ogródek,
Spiżarka 2,57m2,
WC 1,3m2
Przedsionek 2,7m2
Ip.
pokój 9,69m2,
garderoba 4,53m2
łazienka 4,53m2,
hol 2,05m2
Poddasze:
pokój 10, 97m2
garderoba 13,38m2
Hol 1,25m2
Standard wykończenia:
- piec , grzejniki, osprzęt elektryczny, tynki wewnętrzne , balustrady na balkonach , ogródki wydzielone , parapety wewnętrzne .
2 Miejsca postojowe przed budynkiem.
Mieszkanie w stanie deweloperskim.
Na planie budynek 1 lokal 2
Media:
Woda własna, szambo, Gaz, Prąd
Idealne położenie pod względem komunikacyjnym -ok. 10km co centrum, dojazd samochodem poniżej 20minut nawet w godzinach szczytu.
Bardzo dobry dojazd komunikacją miejską:
Przystanek autobusowy w odległości ok.400m.
CAŁKOWITA CENA NIERUCHOMOŚCI:
-mieszkanie 850.000zł
-2 miejsca postojowe 30.00zł
-ogródek 0.00zł
RAZEM: 880.000 zł
odbiór 03.2026r
Oferta godna polecenia
Zapraszam na prezentację
Ewa 501 - pokaż numer telefonu -
Oferujemy bezpłatną pomoc w uzyskaniu najlepszego finansowania na zakup nieruchomości.
Za wykonaną usługę pobieramy wynagrodzenie zgodnie z warunkami uzgodnionymi w zawartej umowie. Współpraca po podpisaniu umowy pośrednictwa.
Niniejsze ogłoszenie ma charakter wyłącznie informacyjny i nie stanowi oferty w rozumieniu przepisu art. 66 Kodeksu Cywilnego. Nasze usługi świadczymy w oparciu o umowę pośrednictwa, która gwarantuje Państwu opiekę naszego doradcy przez cały okres trwania współpracy.
Oferta wysłana z programu IMO dla biur nieruchomości
Numer oferty: 495
Sprawdź zainteresowanie tym ogłoszeniem
Wyświetlenia
Data dodania
Ostatnio widziany
Obserwujących
Wysłane zapytania
Odsłony telefonu
Powiadom o podobnych ogłoszeniach
Lokalizacja: Warszawa
Kategoria: Nieruchomości » Domy » Sprzedaż
Cena: od 722500 zł do 977500 zł Powierzchnia : od 65 m2 do 87 m2
Chcę otrzymywać powiadomienia o nowych ofertach
Ewa Krawczyk
Konto firmowe
Na Lento.pl od 10 paź 2016
Strona użytkownika
- Wypromuj ogłoszenie
- Zgłoś naruszenie
- Drukuj ulotkę
- Edytuj/usuń ogłoszenie
- Udostępnij ogłoszenie
- Dodaj na Facebook










