Dom Warszawa
Warszawa Pokaż na mapie ›
Odświeżone: Niedziela, 25 Styczeń, 2026 08:30
316 198 zł
3720 zł/m2
Szczegóły ogłoszenia
- Kategoria: Domy / Sprzedaż
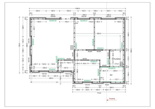
- Powierzchnia:85 m2
- Liczba pokoi:4 pokoje
- Pow. działki:398 m2
- Rynek:Pierwotny
- Sprzedaż:Pośrednik
- Cena: 316 198 zł / 3720 zł/m2
Opis oferty
Dom Prefabrykowany Modrzyk Bis to idealna propozycja dla osób posiadających średniej szerokości działkę. Dom posiada typową bryłę, przez co jest tani w budowie. Projekt ma usytuowaną kalenicę równolegle do drogi, co jest bardzo istotne, gdy wymagają tego warunki zabudowy. Kierowany jest do Inwestorów posiadających działkę pozwalającą na realizację projektu w zabudowie wolnostojącej. Projekt jest idealną propozycją dla osób zainteresowanych domem z dachem dwuspadowym, dzięki któremu budynek posiada ponadczasowy wygląd. Dom Modrzyk to dom parterowy, co sprawia, że komunikacja między pomieszczeniami jest bardzo wygodna.Oferuję wykonanie:
- Kompletnej płyty fundamentowej wraz z instalacjami CO, Ogrzewania Podłogowego, CWU, Instalacji Kanalizacyjnej
Ciepła płyta fundamentowa jest wysoko efektywnym rozwiązaniem technicznym, który, pozwala w bardzo krótkim czasie wykonać fundament pod przyszły budynek. Rdzeniem fundamentu jest płyta żelbetowa, która pełni funkcję konstrukcyjną i równomiernie przenosi obciążenia z budynku. Posadowiona jest na gruncie w idealnej otoczce izolacji termicznej, znacząco ograniczając straty ciepła. Dzięki całkowitemu wyeliminowaniu mostków termicznych, fundament spełnia wszystkie warunki dla budownictwa energooszczędnego i pasywnego.
- Wyprodukowanie i montaż prefabrykowanych ścian szkieletowych
Stosowana przez nas technologia wykonywania domów szkieletowych daje możliwość budowy nie tylko komfortowych budynków mieszkalnych. Największą zaletą naszych domów jest energooszczędność oraz czas realizacji. W zależności od wielkości domu będziesz mógł wprowadzić się po 8 do 12 tygodni.
Powstają one z gotowych elementów konstrukcyjnych z których montuje się ściany zewnętrzne, wewnętrzne nośne, wewnętrzne działowe oraz stropy
Ściana zewnętrzna domu to jedna z głównych przegród izolujących decydująca o tym, jak ciepły i komfortowy będzie dom. W naszych domach stosujemy podwójną warstwę izolacyjną z wełny 15cm + 5cm oraz 15cm warstwę zewnętrzną ze styropianu. Łączna grubość ściany to 38cm, dzięki czemu uzyskaliśmy bardzo dobry wskaźnik przenikania ciepła U=0,113.
Ściany wewnętrzne domu są obustronnie obłożone płytą OSB 12mm oraz płytą kartonowo gipsową 12mm co dodatkowo wpływa na usztywnienie konstrukcji domu. Wewnętrzna warstwa wełny mineralnej stanowi dodatkową izolację akustyczną między pomieszczeniami.
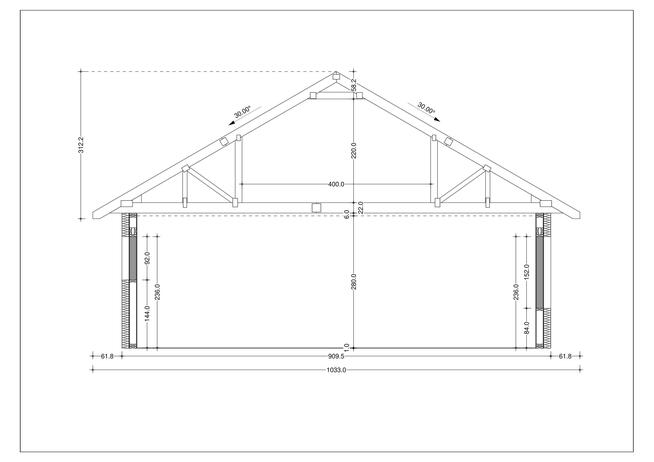
- Wyprodukowanie i montaż prefabrykowanych wiązarów dachowych
Połączenie tarcicy drewnianej ze wprasowaną w węzły stalową płytką, nazywamy prefabrykowanymi wiązarami. Wykonywane w wyspecjalizowanym zakładzie produkcyjnym, już jako gotowe elementy konstrukcyjne są dostarczone na plac budowy a następnie wbudowane w obiekt.
Dzięki precyzji projektowej i wykonawczej, proces produkcji wiązarów pozwala na bardzo oszczędne wykorzystanie zasobów materiałowych przy jednoczesnym zmniejszeniu czasu realizacji, zastąpieniu ciężkich stropów betonowych lekkimi gotowymi konstrukcjami drewnianymi, a także lepsze zorganizowanie przestrzeni użytkowej.
- Nasze budynki montujemy na terenie całego kraju
- Podane wymiary działki, są minimalną powierzchnią do usytuowania danego domu.
Uwagi: Koszt dostawy danego domu wyceniany jest indywidualnie, w zależności od lokalizacji budowy.
Treść niniejszego ogłoszenia nie stanowi oferty handlowej w rozumieniu Kodeksu Cywilnego.
Numer oferty: 49
Sprawdź zainteresowanie tym ogłoszeniem
Wyświetlenia
Data dodania
Ostatnio widziany
Obserwujących
Wysłane zapytania
Odsłony telefonu
Powiadom o podobnych ogłoszeniach
Lokalizacja: Warszawa
Kategoria: Nieruchomości » Domy » Sprzedaż
Cena: od 269000 zł do 363500 zł Powierzchnia : od 72 m2 do 98 m2
Chcę otrzymywać powiadomienia o nowych ofertach
Bartłomiej Staszałek
Konto firmowe
Na Lento.pl od 27 gru 2024
Strona użytkownika
- Wypromuj ogłoszenie
- Zgłoś naruszenie
- Drukuj ulotkę
- Edytuj/usuń ogłoszenie
- Udostępnij ogłoszenie
- Dodaj na Facebook














