AutoCAD 2D & 3D/ dxf/dwg/ stl/ step/ 3Ds/ obj/ pdf/ svg/ CNC
Warszawa Pokaż na mapie ›
Ogłoszenie archiwalne Wygasło: Czwartek, 14 Sierpień, 2025 13:50
Szczegóły ogłoszenia
- Kategoria: Współpraca biznesowa
Opis oferty
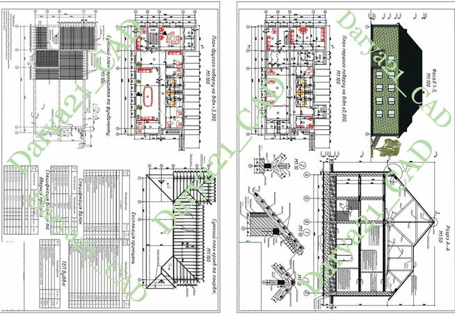
Potrafię tworzyć wysokiej jakości rysunki w programie AutoCAD 2D i 3D. Akceptowane formaty dxf. dwg. svg. stl. krok. Moje rysunki różnią się od innych dużą dokładnością. Jestem w stałym kontakcie i na Państwa życzenie mogę dokonać zmian do czasu zakończenia prac. Potrafię również przygotować rysunki do dokumentacji konstrukcyjnej, różnego rodzaju schematy, tabele, układy budynków na rzucie ogólnym, a także modelowanie 3D na maszyny CNC lub druk 3D. Koszt pracy zależy od stopnia jej złożoności. Napisz do mnie, a omówimy wszystko, Convert PDF to DWG.Płatność zostanie dokonana wyłącznie na konto PayPal.
Sprawdź zainteresowanie tym ogłoszeniem
Wyświetlenia
Data dodania
Ostatnio widziany
Obserwujących
Wysłane zapytania
To ogłoszenie jest archiwalne i może być nieaktualne.
Darya21
Konto prywatne
Strona użytkownika
- Wypromuj ogłoszenie
- Zgłoś naruszenie
- Edytuj/usuń ogłoszenie
- Udostępnij ogłoszenie
- Dodaj na Facebook








