2 pokoje,magazynek ,parking ,dostęp 24 h .
Warszawa / Wilanów Pokaż na mapie ›
Odświeżone: Środa, 04 Marzec, 2026 09:11
5 878 zł
Szczegóły ogłoszenia
- Kategoria: Biura i lokale / Do wynajęcia
- Przeznaczenie:Inne przeznaczenie
- Powierzchnia:54 m2
- Sprzedaż:Pośrednik
- Cena: 5 878 zł
Opis oferty
Osoba prowadząca Rafał 600 - pokaż numer telefonu -W przypadku tej oferty Poszukujący nie płaci prowizji
Do wynajęcia profesjonalna powierzchnia biurowa ok 54 m 2 w
kameralnym obiekcie komercyjnym na Wilanowie .(po za Miasteczkiem
Wilanów )
Doskonałe warunki , profesjonalne biuro do pracy ,obiekt zadbany i
bezpieczny , sprawnie zarządzany .
Lokalizacja na starym Wilanowie w rejonie ulicy Nałęczowskiej , w
otoczeniu niskiej zabudowy z dużą ilością zieleni .
Dojazd samochodem do Dworca Centralnego oraz do Międzynarodowego
Portu Lotniczego im. Fryderyka Chopina zajmuje ok. 15 minut
Blisko przystanek autobusowy , sklep sieciowy , restauracja i
siłownia .
Obiekt na terenie ogrodzonym z całodobową ochroną i monitoringiem .
Dostęp do lokalu bez ograniczeń , 7 dni w tygodniu , 24 h.
Elastyczne moduły biurowe, kilka rozmiarów powierzchni
Swoboda parkowania w okolicy ,ew. parking ze szlabanem z
możliwością wykupienia miejsca dedykowanego .
Ochrona ,monitoring , kontrola dostępu -system kart magnetycznych .
Reprezentacyjne wejście i klatka schodowa .Zadbane z elementami
zdobień ściennych , żyrandoli , dywanów i obrazów .
W budynku recepcja z poczekalnią (całodobowa ) i możliwość
wynajmu sali konferencyjnych na godziny .
Lokal na 3 piętrze , budynek z windą osobową .
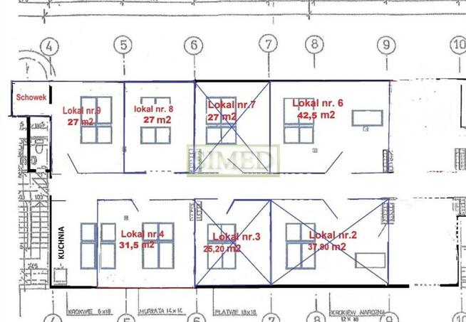
Dwa ustawne pokoje o pow. 27 m 2 z ciemnym magazynkiem ( bez okien ),
oraz 27 m 2 , obok siebie . (możliwość połączenia )
Standard lokalu ; światłowód , nowa/wyprana wykładzina dywanowa ,
ściany pomalowane na biało ,klimatyzacja z regulacją temperatury ,
oświetlenie rastrowe , instalacja elektryczna , teleinformatyczna
,przeciwpożarowa , podwójne zasilanie .
Łącza internetowe .(kilku operatorów ) Umowę podpisuje Najemca .
Duże uchylne okna , klimatyzacja z regulacja temperatury w pokojach .
Pomieszczenia wysokie , ze skosami .
W pokoju dodatkowo magazynek bez okien , zamykany , ok 2 m2 .
Zaplecze socjalne w zabudowie kuchennej oraz toaleta w części
wspólnej .
Kuchnia umeblowana ze sprzętem AGD ( zmywarka, kuchenka ,
mikrofalowa, lodówka, czajnik ),
Duża wytrzymałość stropów 1000 kg/m2 .
Do dyspozycji Najemców prysznic dla rowerzystów.
Udogodnienia dla niepełnosprawnych . (podjazd , winda ,łazienki)
W części wspólnej strefa relaksu dla Najemcy .
Czynsz najmu 5878 netto zł plus opłata za energie elektryczną .(
ryczałt 8,50 zł / m 2 netto )
Cena zawiera koszty ogrzewania i sprzątanie powierzchni wspólnych .
Miejsca dedykowane na parkingu przy wejściu do budynku , wjazd ze
szlabanem 400 zł/netto/miesięcznie za samochód osobowy .
Sala konferencyjna (w pełni wyposażona, dla 10 osób, aneks
kuchenny, 3 toalety): 70 zł /h
Zdjęcia lokalu obrazują jego standard .
Wymagana kaucja .
Osoba prowadząca Rafał 600 - pokaż numer telefonu - .
Ogłoszenie ma charakter informacyjny i nie stanowi oferty handlowej w
rozumieniu art. 66 §1 kodeksu cywilnego ani innych właściwych
przepisów prawnych.
Świadectwo charakterystyki energetycznej - zapotrzebowanie na
energię:
EU - użytkową (kWh/m2*rok): 30.81; EK - końcową (kWh/m2*rok):
40.81; EP - nieodnawialną energię pierwotną (kWh/m2*rok): 44.67;
EC02 - Wielkość emisji CO2 (t C02/m2*rok): 0.10; UOZE - Udział
odnawialnych źródeł energii w zapotrzebowaniu na energię końcową
[%]: 0.00;
Sprawdź zainteresowanie tym ogłoszeniem
Wyświetlenia
Data dodania
Ostatnio widziany
Obserwujących
Wysłane zapytania
Powiadom o podobnych ogłoszeniach
Lokalizacja: Warszawa
Kategoria: Nieruchomości » Biura i lokale » Do wynajęcia
Cena: od 5000 zł do 7000 zł Powierzchnia : od 46 m2 do 62 m2
Chcę otrzymywać powiadomienia o nowych ofertach

Konto firmowe
Na Lento.pl od 07 sty 2021
Odpowiada szybko
Strona użytkownika
- Wypromuj ogłoszenie
- Zgłoś naruszenie
- Drukuj ulotkę
- Edytuj/usuń ogłoszenie
- Udostępnij ogłoszenie
- Dodaj na Facebook
































