0%, deweloperskie - Zielona Białołeka na 2026 r.
Warszawa / Białołęka Pokaż na mapie ›
Dodane: Niedziela, 08 Luty, 2026 09:46
556 459 zł
15457 zł/m2
Szczegóły ogłoszenia
- Kategoria: Mieszkania / Sprzedaż
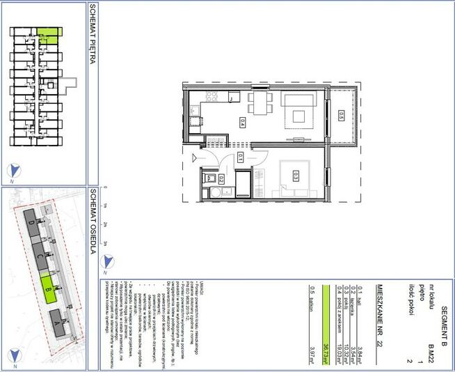
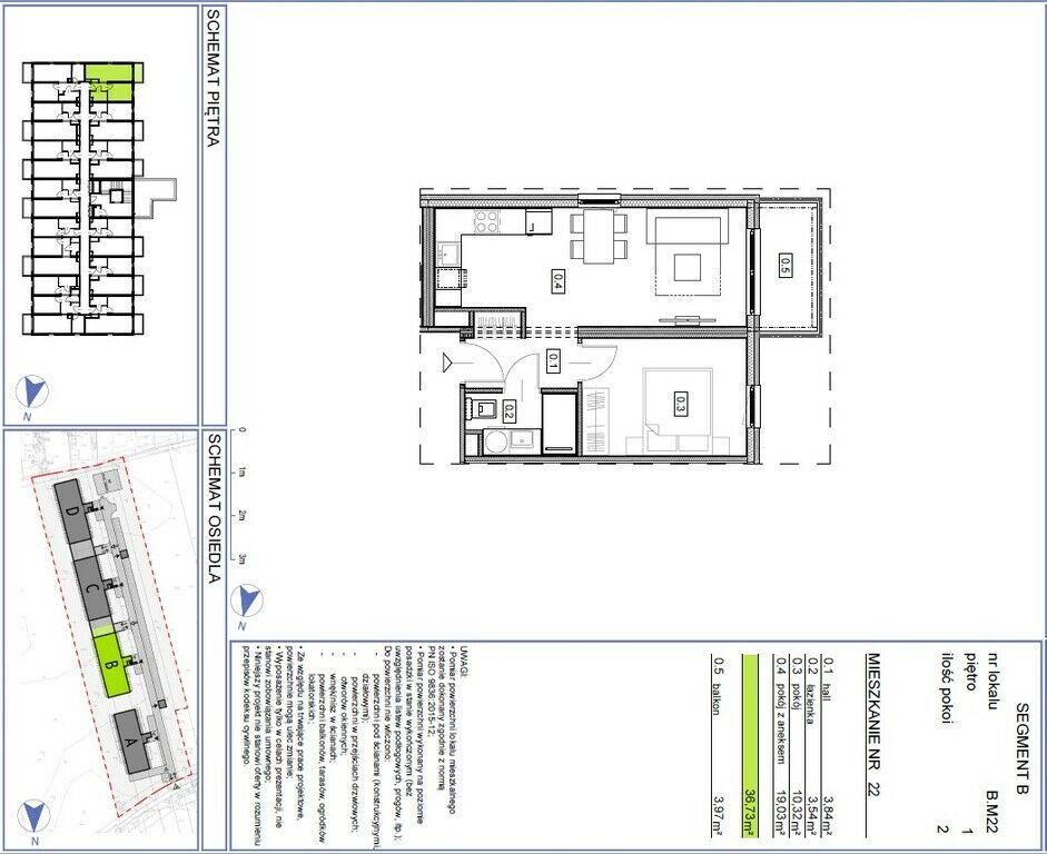
- Powierzchnia:36 m2
- Liczba pokoi:2 pokoje
- Zabudowa:Blok
- Tech. budowy:Inne
- Piętro :2 piętro
- Liczba pięter:2 piętra
- Rynek:Wtórny
- Rok budowy:2026
- Sprzedaż:Pośrednik
- Inf. dodatkowe:Balkon
- Cena: 556 459 zł / 15457 zł/m2
Opis oferty
Kupno od dewelopera, 0% PROWIZJI, 2 etap inwestycji na czerwiec 2026Budynek B, Lokal mieszkalny nr B-34, balkon: 3,97 m
możliwość dokupienia m-ca postojowego w garażu podziemnym - 40.000
zł
Szczegóły dotyczące inwestycji, informacja i standardzie oraz
zestawienie dostępnych lokali na stronie brokera pod linkiem:
http://homeplus.pl/,1772/78/OI
Kameralne osiedle położone jest na terenach tzw. „Zielonej
Białołęki”, dobrze skomunikowanej z centrum Warszawy. W Osiedlu
zastosowano eko-rozwiązania które zapewnią niższe opłaty za
energię, ogrzewanie oraz ciepłą wodę, dzięki pompom ciepła i
instalacji systemu fotowoltaicznego. W mieszkaniach zamontowane jest
również ogrzewanie podłogowe.
Budowa osiedla podzielona jest na dwa etapy. W pierwszym powstały
cztery budynki (131 mieszkań)
Drugi etap to 138 mieszkań, 142 miejsca dla samochodów i jeden lokal
usługowy przeznaczony na sklep spożywczy.
Osiedle jest zamknięte, bezpieczne.
Trzykondygnacyjne budynki powstają w technologii modułowej
drewnianej, przyjaznej dla środowiska i dla mieszkańców. Do budowy
zastosowane są naturalne, podlegające recyklingowi materiały:
drewno, wełna mineralna, która zapewnia optymalne właściwości
cieplne, oraz płyty gipsowo-włóknowe; wszystkie produkowane na
bazie naturalnych surowców, przy wykorzystaniu biotechnologii
bazującej na naturalnych komponentach; wolne od formaldehydu, fenolu
i akrylu, dodatków sztucznych barwników oraz substancji
rozjaśniających, bez dodatków klejów. Dzięki temu są praktycznie
bezemisyjne.
W pobliżu osiedla są szkoły i przedszkola. Na skrzyżowaniu ulic
Berensona i Zaułek, w Centrum Handlowym, jest m.in. pralnia, apteka,
kwiaciarnia, salon urody i sklep spożywczy Carrefour. W odległości
od 7 do 10 min jazdy samochodem znajdują się:
Kompleks Handlowy Marywilska 44 – rozległe centrum handlowe z 1400
sklepami i punktami usługowymi oraz zróżnicowaną ofertą
gastronomiczną, Factory Annopol – najlepsze centrum outletowe w
Polsce, Atrium Targówek, Decathlon Targówek – sklep sportowy
CH Prima Marki, Auchan Modlińska, Sklepy meblowe: IYSK, IKEA, Agata,
Multikino, Miejskie Centrum Sportu
___________RODO : HOMEPLUS Nieruchomości z siedzibą w (05-250)
Radzyminie, Al. Jana Pawła II 1B, informuje Państwa, iż podanie
danych jest dobrowolne, ale niezbędne w celu świadczenia usług
pośrednictwa w obrocie nieruchomościami przez nasze biuro.
Posiadają Państwo prawo dostępu do treści swoich danych i ich
sprostowania, usunięcia, ograniczenia przetwarzania, prawo do
przenoszenia danych, prawo do cofnięcia zgody w dowolnym momencie bez
wpływu na zgodność z prawem przetwarzania.
- Dane mogą być udostępniane przez HOMEPLUS podmiotom upoważnionym
do uzyskania informacji na podstawie przepisów ustawy z 21.08.1997 r.
o gospodarce nieruchomościami (Dz.U. z 2016 r. poz. 2147 ze zm.).
- Podane dane będą przetwarzane na podstawie art. 6 ust. 1 pkt a) i
zgodnie z treścią ogólnego rozporządzenia o ochronie danych.
- Administratorem danych jest HOME PLUS – Ireneusz Kurzyński oraz
HOME PLUS - Małgorzata Kosińska z siedzibą w Radzyminie , Al. Jana
Pawła II 1B, e-mail: @ Przekazane przez Państwa
osobowe będą przechowywane przez okres niezbędny do wykonania umowy
oraz dodatkowo przez okres wynikający z przepisów o przedawnieniu
roszczeń – w celu ewentualnej ochrony prawnej administratora. Nie
później niż rok po upływie tego okresu dane osobowe zostaną
trwale usunięte z systemów informatycznych, a dane papierowe –
trwale zniszczone. Mają Państwo prawo wniesienia skargi do Prezesa
Urzędu Ochrony Danych Osobowych (PUODO), gdy uznacie Państwo, iż
przetwarzanie podanych przez Państwa danych osobowych narusza
przepisy ogólnego rozporządzenia o ochronie danych osobowych z dnia
27 kwietnia 2016 r. (RODO).
---------------------
UWAGA!*Powyższe informacje nie stanowią oferty w rozumieniu Kodeksu
Cywilnego. HOMEPLUS Nieruchomości nie ponosi odpowiedzialności za
dokładność, kompletność i aktualność prezentowanych obiektów,
staramy się jednak, aby informacje dotyczące ofert były możliwie
najbardziej kompletne i aktualne.
Sprawdź zainteresowanie tym ogłoszeniem
Wyświetlenia
Data dodania
Ostatnio widziany
Obserwujących
Wysłane zapytania
Odsłony telefonu
Powiadom o podobnych ogłoszeniach
Lokalizacja: Warszawa
Kategoria: Nieruchomości » Mieszkania » Sprzedaż
Cena: od 473000 zł do 640000 zł Powierzchnia : od 31 m2 do 41 m2
Chcę otrzymywać powiadomienia o nowych ofertach
Ireneusz Kurzyński
Konto firmowe
Na Lento.pl od 03 mar 2021
Odpowiada szybko
Strona użytkownika
- Wypromuj ogłoszenie
- Zgłoś naruszenie
- Drukuj ulotkę
- Edytuj/usuń ogłoszenie
- Udostępnij ogłoszenie
- Dodaj na Facebook



















