0%,deweloperskie na Targówku, w pobliżu S8
Warszawa / Targówek Pokaż na mapie ›
Dodane: Sobota, 28 Luty, 2026 03:00
1 350 977 zł
12282 zł/m2
Szczegóły ogłoszenia
- Kategoria: Mieszkania / Sprzedaż
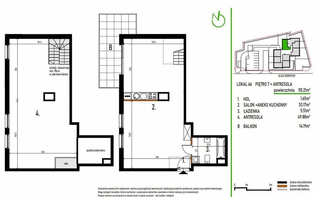
- Powierzchnia:110 m2
- Liczba pokoi:3 pokoje
- Zabudowa:Blok
- Tech. budowy:Inne
- Piętro :7 piętro
- Liczba pięter:Wieżowiec
- Rynek:Wtórny
- Rok budowy:2025
- Sprzedaż:Pośrednik
- Inf. dodatkowe:Balkon
- Cena: 1 350 977 zł / 12282 zł/m2
Opis oferty
0% prowizji, INWESTYCJA ZREALIZOWANA !!!LOKAL nr 66 ( z antresolą ), balkon: 14,19 m
/pełne zestawienie oferowanych mieszkań, harmonogram płatności i
pełny opis inwestycji na stronie brokera pod linkiem:
www.homeplus.pl/,1617/78/OI /
cena m-ca postojowego w poziomie terenu - 25.000 zł
cena niezależnego miejsca postojowego w garażu: 35.000 zł
cena rodzinnego m-ca postojowego w garażu: 55.000 zł
[ UWAGA obowiązkowy zakup jednego z trzech dostępnych wariantów m-c
parkingowych ]
Budynek został zaprojektowany o wysokości 34,68 m o dziewięciu
kondygnacjach nadziemnych i jednej kondygnacji podziemnej, jako
budynek mieszkalny wielorodzinny punktowy, jednoklatkowy. Na ósmej i
dziewiątej kondygnacji nadziemnej budynku zostaną wydzielone lokale
wraz z antresolami.
Przewiduje się dwie windy osobowe.
Na dziedzińcu zlokalizowano dodatkowy parking dla 10 samochodów
osobowych.
Inwestycja obejmuje 8 piętrowy budynek z 78 mieszkaniami 1-, 2-, 3- i
4-pokojowymi, o powierzchni od 40 do 130 m², z głębokimi balkonami,
przestronnymi tarasami i dużymi ogródkami. Przewidziano miejsca
postojowe w garażach podziemnych i parkingu w terenie oraz boksy
rowerowe. Na patio zostanie usytułowana strefa rekreacji.
DODATKOWE INFORMACJE
3min pieszo do sklepu osiedlowego, psiego parku,
6min pieszo do pętli autobusowej,
11min pieszo do żłobka,
15min pieszo do szkoły podstawowej i pływalni Polonez,
17min pieszo do Atrium Targówek,
15min pieszo do stacji metra,
20min pieszo do Parku Bródnowskiego i lasu Bródnowskiego,
5min autem do drogi wylotowej, trasy S8.
16min autem do Centrum.
W Budynku przewidywano:
- 77 samodzielnych lokali mieszkalnych usytuowanych na kondygnacjach
nadziemnych,
- 1 samodzielny lokal usługowy usytuowany na pierwszej kondygnacji
nadziemnej,
W Garażu A usytuowany na kondygnacji podziemnej budynku przewidywano:
- 24 samodzielne miejsca parkingowe, - 4 podwójne miejsca parkingowe
(przejezdne - rodzinne), - 6 boksów rowerowych,
W Garażu B usytuowany na kondygnacji podziemnej budynku przewidywano:
- 46 samodzielnych miejsc parkingowych, - 5 podwójnych miejsc
parkingowych (przejezdnych - rodzinnych), - 9 boksów rowerowych,
Orientacyjne terminy związane z przedsięwzięciem deweloperskim:
- rozpoczęcie inwestycji - IV kwartał 2022 roku,
- zakończenie prac budowlanych - II kwartał 2025 roku,
- przekazanie kluczy klientom - IV kwartał 2025 roku,
- przeniesienie prawa własności nieruchomości do dnia 31.05.2026
roku.
___________RODO : HOMEPLUS Nieruchomości z siedzibą w (05-250)
Radzyminie, Al. Jana Pawła II 1B, informuje Państwa, iż podanie
danych jest dobrowolne, ale niezbędne w celu świadczenia usług
pośrednictwa w obrocie nieruchomościami przez nasze biuro.
Posiadają Państwo prawo dostępu do treści swoich danych i ich
sprostowania, usunięcia, ograniczenia przetwarzania, prawo do
przenoszenia danych, prawo do cofnięcia zgody w dowolnym momencie bez
wpływu na zgodność z prawem przetwarzania.
- Dane mogą być udostępniane przez HOMEPLUS podmiotom upoważnionym
do uzyskania informacji na podstawie przepisów ustawy z 21.08.1997 r.
o gospodarce nieruchomościami (Dz.U. z 2016 r. poz. 2147 ze zm.).
- Podane dane będą przetwarzane na podstawie art. 6 ust. 1 pkt a) i
zgodnie z treścią ogólnego rozporządzenia o ochronie danych.
- Administratorem danych jest HOME PLUS – Ireneusz Kurzyński oraz
HOME PLUS - Małgorzata Kosińska z siedzibą w Radzyminie , Al. Jana
Pawła II 1B, e-mail: @ Przekazane przez Państwa
osobowe będą przechowywane przez okres niezbędny do wykonania umowy
oraz dodatkowo przez okres wynikający z przepisów o przedawnieniu
roszczeń – w celu ewentualnej ochrony prawnej administratora. Nie
później niż rok po upływie tego okresu dane osobowe zostaną
trwale usunięte z systemów informatycznych, a dane papierowe –
trwale zniszczone. Mają Państwo prawo wniesienia skargi do Prezesa
Urzędu Ochrony Danych Osobowych (PUODO), gdy uznacie Państwo, iż
przetwarzanie podanych przez Państwa danych osobowych narusza
przepisy ogólnego rozporządzenia o ochronie danych osobowych z dnia
27 kwietnia 2016 r. (RODO).
---------------------
UWAGA!*Powyższe informacje nie stanowią oferty w rozumieniu Kodeksu
Cywilnego. HOMEPLUS Nieruchomości nie ponosi odpowiedzialności za
dokładność, kompletność i aktualność prezentowanych obiektów,
staramy się jednak, aby informacje dotyczące ofert były możliwie
najbardziej kompletne i aktualne.
Sprawdź zainteresowanie tym ogłoszeniem
Wyświetlenia
Data dodania
Ostatnio widziany
Obserwujących
Wysłane zapytania
Odsłony telefonu
Powiadom o podobnych ogłoszeniach
Lokalizacja: Warszawa
Kategoria: Nieruchomości » Mieszkania » Sprzedaż
Cena: od 1148500 zł do 1553500 zł Powierzchnia : od 94 m2 do 127 m2
Chcę otrzymywać powiadomienia o nowych ofertach
Ireneusz Kurzyński
Konto firmowe
Na Lento.pl od 03 mar 2021
Odpowiada szybko
Strona użytkownika
- Wypromuj ogłoszenie
- Zgłoś naruszenie
- Drukuj ulotkę
- Edytuj/usuń ogłoszenie
- Udostępnij ogłoszenie
- Dodaj na Facebook















